Pourquoi avoir sélectionné ce projet à titre de vitrine pour Kollectif ?
En marchant sur la rue Ontario, notre équipe a été intriguée par un nouvel espace à bureaux qui contraste avec les autres commerces du quartier. Vaste et épuré, tout en étant texturé et coloré, cette réalisation de Ivy Studio s’inscrit dans une volonté d’offrir aux usagers un lieu flexible qui peut évoluer au fil des besoins et des évènements. Tant des pigistes œuvrant pour l’organisation que des photographes en recherche d’un lieu pour une séance photo peuvent s’y installer.
Le design se matérialise sous la forme d’une palette de matériaux sobres, qui présente un canevas neutre mettant en valeur le travail exposé. Le long comptoir-bar et les éléments de mobilier en velours ajoutent ponctuellement une touche de magie dans l’espace, évitant le côté stérile qu’on attribue parfois à des décors blanchâtres et contemporains.
Élément marquant du projet qu’on ne peut passer sous silence : la laine minérale rose et les colombages métalliques qui sont exposés derrière des feuilles de polycarbonate. Surprenant à première vue, tout en étant habillement intégré visuellement afin de répondre à des fonctions acoustiques pour les salles de réunion.
Mentionnons également l’éclairage, qui a été finement travaillé pour magnifier le lieu et permettre la tenue des différents usages.
Description du projet :
M.A.D collectif (Mode, Arts et Divertissements) est un studio d’expériences créatives montréalais. Depuis plus de 20 ans, ils organisent à travers le monde des évènements reliés à la mode, à l’art et au design. En 2022, le groupe a entièrement revu son approche et sa vision face à l’industrie, résultant en un changement de nom et d’identité (auparavant, Groupe Sensation Mode) ainsi qu’à de nouveaux bureaux de travail pour leur équipe.
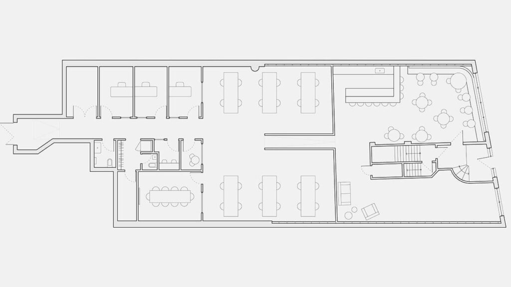
Ils ont arrêté leur choix sur un espace de 3600 pieds carrés au rez-de-chaussée d’un bâtiment de 2 étages dans le Village, un des quartiers les plus dynamiques de Montréal. L’objectif derrière cet emplacement était de mettre l’emphase sur la créativité et la collaboration. Les nouveaux bureaux sont destinés à être utilisés par de multiples partenaires et collaborateurs, pas seulement par les membres de leur équipe interne ; c’est un espace flexible conçu pour partager des idées et travailler en équipe.
Le bâtiment représentait plusieurs défis importants. Abritant une imprimerie depuis sa construction en 1939, l’espace était très profond et n’avait de fenêtres que sur sa façade principale. C’est pour cette raison que les fonctions publiques du programme ont été disposées à l’avant et les fonctions privées à l’arrière. L’entrée dans les bureaux se fait directement par l’espace café. À cet endroit, un grand bar sert de cuisine pour les employés durant le jour et de comptoir de service lors d’évènements spéciaux en soirée. Une longue banquette épouse les murs et sert d’espace pour manger, travailler et pour des rencontres informelles. De l’autre côté du bloc central (contenant la circulation commune du bâtiment) se trouve la deuxième section naturellement éclairée du local. Celle-ci est aménagée comme un espace flexible en aire ouverte comportant un salon et est utilisé comme studio photo, vidéo ou tout autre type création de contenu. La moitié arrière du local, ayant été initialement renforcée avec du béton, est 2 pieds plus haut que le reste de l’espace. Cette différence de hauteur a été utilisée pour séparer les fonctions publiques à l’avant de l’espace de travail plus formel à l’arrière. Une rampe de 16 pieds de long sert de passage entre les deux zones. De part et d’autre de cette rampe se trouvent des bureaux à aire ouverte. Au fond du local, où la lumière se fait plus rare, se trouvent les bureaux fermés, les salles d’appel et les salles de conférence.
Considérant l’identité de M.A.D Collectif et la nature du mandat, l’espace a été conçu pour offrir la plus grande flexibilité possible afin de pouvoir non seulement y travailler, mais également tenir des défilés de mode, des expositions d’art et des pop-up éphémères. Ce concept a inspiré une esthétique qui semble inachevée, où l’espace semble être en constante évolution et où les éléments peuvent être bougés ou modifiés à n’importe quel moment. Des matériaux de construction bruts sont exposés et mis de l’avant plutôt que d’être normalement dissimulés derrière les finis. L’entièreté du local devient ainsi un canevas pour exposer le travail créatif de l’entreprise et de leurs collaborateurs.
Les murs existants, la plomberie ainsi que les équipements de ventilation ont tous été peinturés blancs. La portion basse du local a quant à elle été recouverte de tuiles de céramique blanche sur 4 pieds de hauteur. Les murs en périphérie exposent des montants métalliques qui vont du plancher jusqu’au plafond. Derrière, un système d’éclairage rétroéclaire ces structures qui sont utilisées comme espace d’affichage pour de l’art, des posters ou n’importe quel élément graphique relié aux évènements de M.A.D. En ce qui concerne l’éclairage général, une série de longs rails avec projecteurs sont installés au plafond et vont de l’avant du local jusqu’à l’arrière. Ce système flexible permet d’ajuster l’éclairage en fonction de l’évènement qui s’y déroule, comme dans une galerie d’art. La rampe qui mène vers l’arrière est une expérience en soi. L’espace étroit revêtu de céramique est placé sous une série de tubes lumineux, donnant l’impression d’être sur la piste d’un défilé de mode. Quant à elles, les pièces fermées à l’arrière sont recouvertes de feuilles de polycarbonate au lieu des panneaux de gypse conventionnel, exposant ainsi la laine de roche isolante à l’intérieur des murs. Tous les cadres de métal ainsi que les portes en acier ont été laissés brut et à l’état naturel afin de mettre en valeur leurs imperfections.
À l’exception des tables rondes faites d’acier galvanisé, tout le mobilier du projet contraste avec le canevas sans prétention des matériaux de construction apparents. Lorsqu’on entre dans l’espace, toute notre attention est dirigée vers le bar. Le monolithe recouvert de marbre mesure prêt de 20 pieds de long et détonne de l’environnement blanc et épuré avec ses veines impressionnantes et ses couleurs volcaniques. La longue banquette courbée est recouverte d’un velours mauve métallique et est accompagnée de poufs orange et roses dispersés un peu partout dans le café. Pour terminer, même les tabourets d’atelier et les chaises de marque Hay sont respectivement de couleur lilas et vert forêt.
En résumé, c’est l’entièreté du projet qui a été inspiré par les valeurs de M.A.D. et leur vision avant-gardiste. Le mélange de matériaux bruts et d’éléments inachevés combinés avec les matériaux traditionnellement associés au luxe va à l’encontre des designs conventionnels et crée une esthétique hors du commun, unique à leur nouvelle identité de marque.
Fiche technique du projet :
- Titre officiel du projet : M.A.D.
- Localisation : Montréal
- Clients : M.A.D collectif
- Architecture : IVY Studio
- Entrepreneur général : Gestion Gauthier Construction
- Budget : 450 000$
- Crédit photo : Alex Lesage
Description de la firme :
Bureau d’architecture qui repousse les limites du design.
Nous collaborons à détourner les standards de l’industrie pour construire des espaces uniques qui propulsent les marques à un autre niveau
Pour visiter le site internet d’IVY Studio…
Pour visiter les « Projets du mois » précédents publiés sur Kollectif…



















