Pourquoi avoir sélectionné ce projet à titre de vitrine pour Kollectif :
À peine entré dans l’établissement, trois choses nous sautent aux yeux…
Tout d’abord, l’atmosphère chaleureuse et conviviale des lieux, générée par la richesse de la matérialité. Bois, béton, briques, acier inoxydable (pour ne nommer que ces éléments) s’entrelacent admirablement, sans pour autant surcharger le décor. L’équilibre fait foi de tout.
D’autre part, on reste subjugué par la qualité des nombreux détails de construction, qui distinguent nettement le SUPERNAT d’établissements à vocation similaire dans le quartier. Par exemple, les jonctions entre la céramique et les lattes de bois du plancher, la composition des banquettes, l’heureux mariage entre le béton, le bois et le métal de la banquette extérieure… Tout simplement sublime !
Finalement, la superbe terrasse avec vue sur le Théâtre Denise-Pelletier et le parc Morgan, qui nous donne le goût de s’y prélasser en bonne compagnie avec un verre de vin à la main!
Ménard Dworkind nous a habitués à des décors de très haute qualité. Leur lancée se poursuit avec celui-ci.
Description du projet :
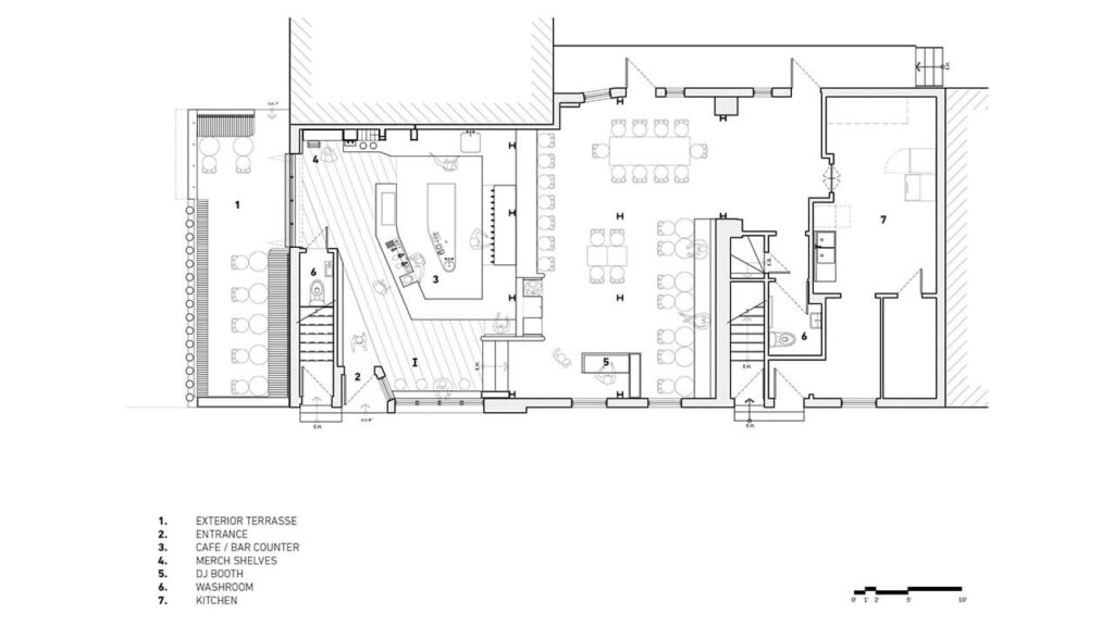
Situé dans le quartier Hochelaga Maisonneuve à Montréal, Supernat est un café de jour et bar à vin de soir. Supernat est à l’image du quartier dans lequel il s’inscrit, il est vivant, proche des gens, très ouvert et accueillant. MRDK s’est fortement inspiré de toutes ces particularités distinctes du quartier, pour alimenter le concept.
C’est en conservant les éléments bruts d’origine et en posant des gestes contemporains que nous avons pus créer un juste équilibre et façonner un espace raffiné, mais décontracté et familier.
Les luminaires linéaires sur mesure contrastent et cohabite avec les suspensions industrielles. Les murs de maçonneries imparfaits découverts lors de la démolition ont été conservés et restaurés afin d’ajouter un caractère unique et inimitable au lieu tandis que le bois de douglas calme le jeu avec son aspect apaisant.
L’espace ouvert et baigné de lumière nous laisse profiter d’une vue magnifique sur le parc Morgan. Le grand comptoir central recouvert de terrazzo permet aux baristas et aux sommeliers de nous accueillir dès l’entrée et permet aux usagers de les observer à l’œuvre sur presque 360 degrés. La terrasse permanente en béton coulé offre une vue imprenable sur le parc et prend presque des airs d’oasis urbaine.
Tout comme Hochelaga, Supernat est contrasté, chaleureux et a l’épreuve du temps. Il a pour objectif de provoquer des rencontres et de rapprocher les gens.
Pour plus d’information à propos du projet…
Fiche technique du projet :
- Titre officiel du projet : SUPERNAT
- Localisation : Montréal
- Clients : Paul Tran et Olivier Trudeau
- Architecte : MRDK
- Entrepreneur général : Mévia Construction
- Date de fin de projet : Juin 2022
- Superficie : 110 m²
- Crédit photo : David Dworkind
Description de la firme :
MRDK, société nominale, est un regroupement d’architectes et designers œuvrant respectivement en pratique indépendante, sous un même toit, basé à Montréal. Nous nous spécialisons dans la réalisation d’espaces commerciaux, d’architecture résidentielle et de design industriel.
Le respect du lieu, du client, des artisans et de la matière sont les fondements même de notre approche pour chaque projet. Ce respect guide notre façon de concevoir et nous permet de faire le pont entre l’esthétisme et la fonctionnalité.
Notre approche est axée sur les détails, en harmonisant chaque élément avec la trame centrale pour ainsi créer une expérience unique et cohésive pour l’utilisateur. Ce niveau de cohérence est atteint grâce à l’attention portée autant à l’idée générale qu’au plus petits détails.
Chaque projet est une opportunité d’établir une relation et un dialogue avec le client. Nous travaillons en étroite collaboration avec ce dernier afin de décoder ses idées, ses besoins et ses désirs et les traduire à la réalité.
En travaillant de concert avec les sous-traitants et les artisans, nous accueillons chaque projet comme une opportunité d’explorer de nouveaux matériaux et d’intégrer de nouveaux procédés. Cette démarche polyvalente et novatrice nous permet de donner un caractère unique et authentique à chaque projet.
Pour visiter le site internet de MRDK…
Pour visiter les « Projets du mois » précédents publiés sur Kollectif…

































