Résidence de l’Isle par Chevalier Morales
Pourquoi avoir sélectionné ce projet à titre de vitrine pour Kollectif ?
Comment ne pas tomber amoureux avec cette résidence qui s’intègre à merveille avec son environnement, offre des vues époustouflantes, est extrêmement généreuse en apport de lumière naturelle et présente des dimensions parfaites de 100 pi x 100 pi ?
Sur le plan volumétrique, la typologie a de quoi inspirer. À certains égards, sa façade avant opaque, la présence d’un jardin central, l’attention à la distribution des espaces de vie et le bandeau encadrant la vue à l’arrière rappellent la Hooper House II de Marcel Breuer. Le niveau de détails est impressionnant tant à l’extérieur (les jeux de maçonnerie, par exemple) qu’à l’intérieur (portes de rangement encastrées dans le salon), tout comme la tectonique en harmonie avec les divers espaces.
L’escalier suspendu avec sa plaque d’acier pliée est presque une œuvre d’art en soi, tandis que les prémisses d’aménagement paysagé laissent présager de superbes jardins contemplatifs dans les années à venir.
Bref, un petit bijou contemporain !
Description du projet :
Revisiter l’architecture domestique des années 1950
Conçu pour un couple et leurs deux enfants, la Résidence de l’Isle est une réinterprétation des maisons américaines modernes du milieu du 20e siècle. Cette maison unifamiliale construite sur le bord d’une rivière, dans la banlieue nord de Montréal, est le résultat d’une conversation architecturale avec les projets et le travail des architectes de cette époque. Dissimulée derrière une rangée de grands pins matures, son implantation permet à la végétation arbustive existante de faire partie intégrante du projet tout en optimisant les vues sur l’eau.
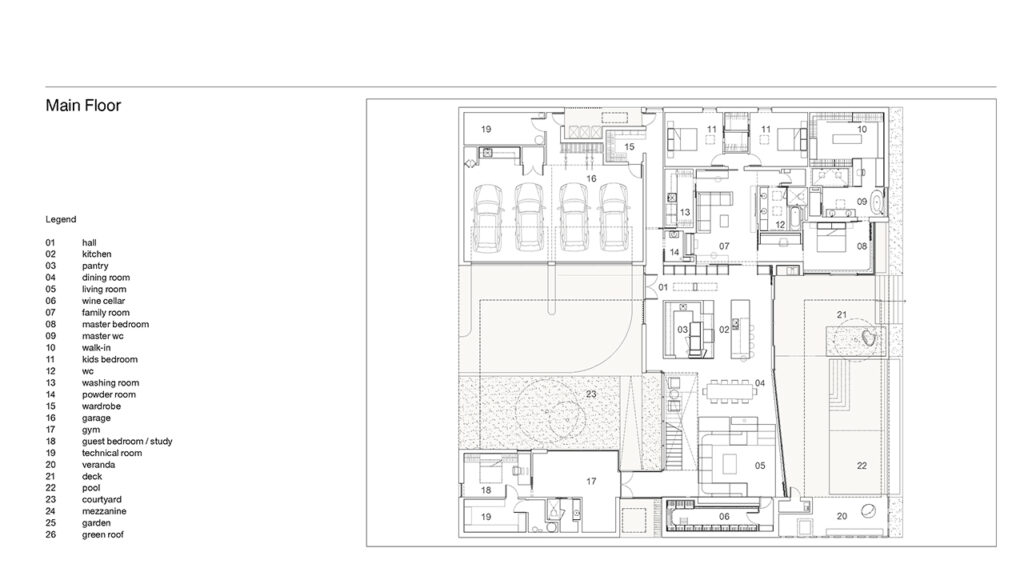
Le carré parfait 100 X 100
Afin de revisiter de façon contemporaine quelques-uns des éléments clés du modernisme, la topographie du plancher et des plafonds, le mobilier intégré en bois et les revêtements en maçonnerie sont retravaillés. Le garage, reflet d’une époque où banlieue et automobile rimaient avec progrès et enthousiasme, est directement intégré dans la maison qui forme un carré parfait de 100 pieds. La question de l’intimité et des ouvertures, cruciales dans les années 1950, permet de créer, deux cours intérieures rectangulaires. Elles s’insèrent dans le volume afin d’amener de la lumière naturelle en plein cœur de la résidence, mais aussi d’incorporer la terrasse arrière et la piscine. Ces espaces extérieurs extrudés de la masse initiale servent également à définir et à structurer la géométrie de l’espace intérieur. Le carré de 100 pieds par 100 pieds est en contact avec un extérieur construit et intériorisé situé à l’avant-plan d’un décor naturel presque laissé en friche au-delà des frontières de la maison.
L’intégration au paysage
L’implantation en retrait de la résidence permet de reprendre les alignements qui préexistaient sur le site et de conserver autant d’arbres que possible. À l’avant, intégré au cœur de la première cour aménagée et donnant accès aux voitures, des conifères ont été plantés au centre de celle-ci. La répartition programmatique des espaces intérieurs prend en considération la relation avec la rue, la relation avec la rivière, l’orientation solaire et les besoins spécifiques des habitants. Aussi, l’espace du salon a été surbaissé de quelques marches et un édicule de verre a été installé sur la toiture. Pensée au départ comme une maison de plain-pied, cette dernière propose une variété d’expériences spatiales.
Les axes mitoyens nord-sud sont privilégiés pour les espaces plus intimes où le besoin de fermeture se fait plus grand, tandis que les espaces de vie se déploient le long de la rivière créant un lien quotidien fort avec le paysage avoisinant. Le positionnement du garage permet de minimiser la présence de la résidence sur la rue, tout en créant un axe clair qui marque l’entrée principale. Cet axe d’entrée s’inscrit dans le même que celui du chemin d’accès existant, atténuant ainsi l’impact sur le site et son paysage. Une végétation arbustive abondante assure l’intimité pour les résidents tout en offrant un contexte végétal et naturel pour le voisinage.
Le traitement des matériaux
Une palette de matériaux agencée à la couleur de l’écorce des arbres permet d’intégrer davantage la nouvelle construction en ton sur ton avec son environnement. Les matériaux privilégiés sont des matériaux naturels dont la brique d’argile de format allongé (mur), le bois (soffite) et la pierre (revêtement de sol). Quelques accents en laiton viennent s’ajouter au projet ainsi qu’un revêtement métallique. En façade avant, une grande baie vitrée crée une percée visuelle transversale jusqu’à la rivière. Une telle percée visuelle morcelle l’ensemble et accentue l’effet pavillonnaire de la construction.
L’espace en mezzanine permet aux résidents de bénéficier d’une vue supplémentaire sur la rivière tout en ponctuant la volumétrie de l’ensemble et brisant l’horizontalité de la résidence. Certaines zones de la toiture sont recouvertes d’une membrane à granules blanches et d’autres sont végétalisées, offrant un environnement vert et tempéré à l’étage. La conception de l’ensemble privilégie les principes de développement durable avec un système de chauffage et de ventilation par géothermie.
Fiche technique du projet :
- Titre officiel du projet : Résidence de l’Isle
- Localisation : banlieue nord de Montréal, Québec
- Client : Particulier
- Architecte : Chevalier Morales
- Ingénieur en structure : Latéral
- Paysage : Fabrique de paysage
- Entrepreneur général : St-Laurent construction
- Date de fin de projet : 2019
- Superficie : 580 m²
- Crédit photo : Chevalier Morales (extérieur) / Adrien Williams (intérieur)
Description de la firme :
Fondée en 2005 par Stephan Chevalier et Sergio Morales, l’agence Chevalier Morales propose une architecture contemporaine sensible et responsable à de multiples niveaux. Leur lecture sans cesse renouvelée du contexte, entendu dans son sens large, donne naissance à des projets qui prennent racine dans leur territoire culturel.
La firme s’est notamment illustrée en remportant plusieurs concours d’architecture de projets institutionnels et culturels comme la bibliothèque Saul-Bellow (Montréal, 2015), la Maison de la littérature (Québec, 2016), la bibliothèque de Drummondville (Drummondville, 2018) et la bibliothèque de Pierrefonds (Montréal, 2019) et plus récemment l’Agora des Arts (Rouyn-Noranda, en cours). Elle développe également des projets résidentiels remarqués tels que la Résidence Roy-Lawrence et la Résidence de la Vallée du Parc.
Au cours des dernières années, le travail de Chevalier Morales a été récompensé par de nombreux prix et distinctions alors que la firme est lauréate en 2018 du Prix du cabinet d’architectes de la relève décerné par l’Institut Royal d’Architecture du Canada (IRAC).
Pour visiter le site internet de Chevalier Morales…
Pour visiter les « Projets du mois » précédents publiés sur Kollectif…















