Pourquoi avoir sélectionné ce projet à titre de vitrine sur Kollectif?
Ce projet nous a immédiatement touchés par son geste à la fois architectural et social : transformer une taverne laissée à l’abandon en un lieu de vie accueillant, pensé pour des personnes en situation d’itinérance. L’intervention pour le compte de la Mission Old Brewery conjugue sensibilité urbaine et programmatique, en inscrivant un programme de dix-huit logements permanents au cœur de Lachine.
Le dialogue entre l’ancien et le contemporain est maîtrisé. La reconstruction soignée du bâtiment existant (provoquée par la contamination des sols) préserve la mémoire du lieu et évite une démolition inutile, tandis que les deux ailes en brique rouge s’intègrent harmonieusement au tissu bâti dans une facture sobre, contemporaine et résolument montréalaise. L’ancienne salle devient un espace commun lumineux et convivial, véritable cœur du projet, donnant sur un espace vert soigneusement aménagé, qui stimule à la fois le bien-être et la vie communautaire.
Chaque détail témoigne d’une conception centrée sur la dignité des résidents : logements complets et lumineux, unités adaptées, accessibilité universelle, matériaux durables et aménagements favorisant la mobilité active. Le remplacement du stationnement par des espaces verts et du rangement pour vélos traduit un engagement environnemental tangible.
Réalisée dans le respect du budget et des délais, la Place Tenaquip illustre comment l’architecture peut être un levier puissant pour tisser des liens, réparer le tissu urbain et offrir un cadre de vie empreint de respect et d’humanité.
Description du projet
D’une taverne abandonnée à un havre de dignité : dix-huit logements pour prévenir l’itinérance à Lachine
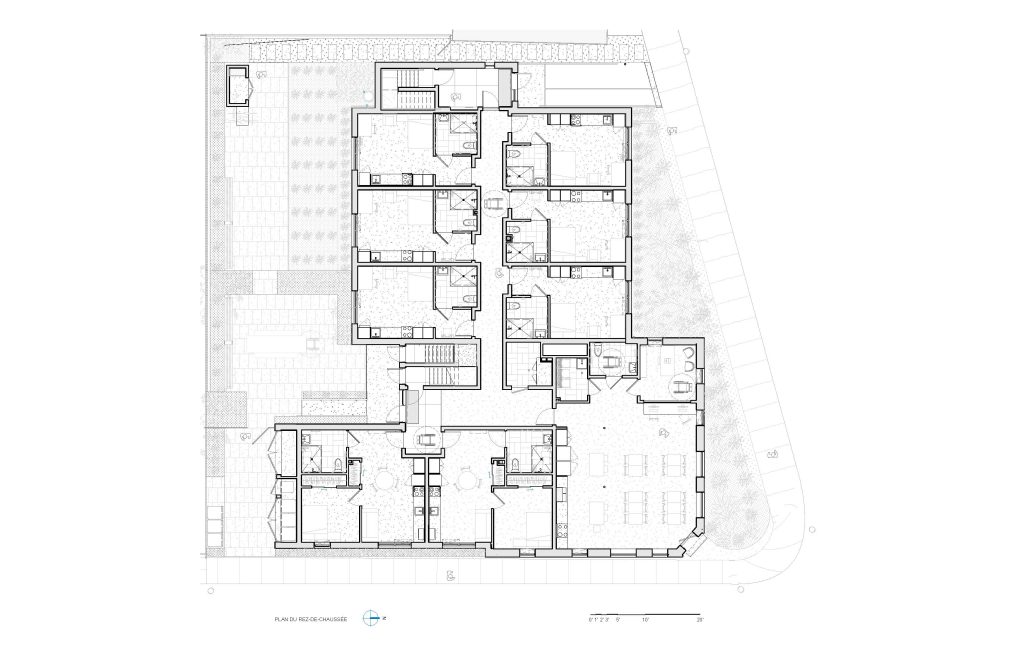
Au coeur d’un quartier en transition, la Place Tenaquip transforme une ancienne taverne abandonnée en un lieu de vie digne et chaleureux, pensé pour des personnes en situation d’itinérance. Ce pavillon de 18 logements permanents est porté par la Mission Old Brewery et financé par la Fondation Tenaquip avec le soutien de la SCHL, de la SHQ, de la Ville de Montréal et du Fonds de solidarité FTQ. Il mise sur la stabilité résidentielle, l’accompagnement personnalisé et l’intégration harmonieuse dans le tissu urbain de Lachine.
Conçu autour d’un bâtiment existant soigneusement reconstruit, le projet s’articule en deux ailes contemporaines revêtues de brique d’argile rouge, dans une continuité sobre et sensible à l’histoire du lieu. L’ancienne taverne devient salle commune, point de rencontre lumineux et convivial pour les résident·es. À l’arrière, un jardin généreusement végétalisé favorise le bien-être et les échanges spontanés.
Chaque logement, compact mais complet, est doté d’une cuisine, d’une salle de bain privée et de grandes ouvertures donnant sur un balcon Juliette. Quatre unités adaptées, des espaces communs universellement accessibles, une buanderie à chaque étage et des matériaux durables complètent une offre conçue pour la pérennité.
Le projet densifie intelligemment le site, remplaçant le stationnement par des espaces verts et du rangement pour vélos. Il favorise ainsi la mobilité active tout en limitant les îlots de chaleur.
Livré dans le budget et les délais prévus, la Place Tenaquip s’impose comme un modèle d’architecture sociale ancrée, humaine et engagée. Un nouveau chapitre s’ouvre pour ce secteur de Lachine, où la réaffiliation sociale prend racine dans la ville, avec douceur et respect.
Fiche technique du projet
- Titre officiel du projet : Place Tenaquip
- Localisation : Lachine, Québec
- Client : Mission Old Brewery
- Architecte : L. McComber
- Ingénieur en structure : Poincaré Experts-Conseils
- Ingénieur électro-mécanique : HF Experts-Conseils
- Ingénieur civil : Équation Groupe Conseil
- Entrepreneur général : Fortis Construction
- Date de fin de projet : 4 juin 2025
- Superficie m2 : 1051 m2
- Budget : 5.6 M$ *
- * Le budget de construction inclut les coûts directs liés à la construction soient notamment les matériaux, la main d’oeuvre, les sous-traitants et les profits et frais de gestion de l’entrepreneur. Il exclut les frais indirects tels que les honoraires professionnels, les frais de permis, les coûts d’achat du terrain et autres frais qui ne sont pas directement liés à la construction
- Crédit photos : Ulysse Lemerise @OAS Images
- Autres consultants :
- Groupe de ressources techniques (GRT) : Groupe CDH
- Ébénisterie : Le Groupe SH
- Financement :
- Fondation Tenaquip, principal donateur
- Société Canadienne d’hypothèque et de logement (SCHL)
- Société d’habitation du Québec (SHQ)
- Ville de Montréal
- Fond de solidarité de la FTQ
Description de la firme
Depuis 2005, L. McComber donne forme à des espaces de vie autant qu’à des lieux de travail. Chaque projet est abordé avec un esprit inclusif et novateur. La pratique de la firme accueille une clientèle variée qui cherche une approche humaine et respectueuse de notre environnement. L’acte de construire des lieux sensibles et dynamiques, c’est ce que nous appelons l’architecture vivante !



























