Pourquoi avoir sélectionné ce projet à titre de vitrine sur Kollectif?
Au risque de tomber dans les clichés, l’hôtel de ville est la maison des citoyens. Elle revêt une importance symbolique à une époque de bouleversements géopolitiques et de polarisation des débats sociétaux. Elle peut également être la démonstration de la valeur ajoutée d’une architecture de qualité au sein d’une communauté, à l’instar de cette réalisation de BGLA.
À mi-chemin entre un pavillon de parc et un édifice à bureaux, l’omniprésence du bois à l’intérieur nous transporte dans une atmosphère sereine qui rappelle davantage l’ambiance chaleureuse d’un week-end au chalet qu’une journée de semaine au travail.
Ce sentiment est amplifié par la présence de la nature, cadrée par une abondante fenestration qui permet aux usagers de baigner dans la lumière naturelle.
On apprécie également la sobriété générale du geste architectural, qui est maîtrisée à souhait pour en arriver à un premier bâtiment institutionnel certifié Passivhaus au Québec. Les pans de toiture inclinés ajoutent également un dynamisme appréciable à la réalisation.
Description du projet
Construit sur un promontoire devant la Route Principale, le nouvel Hôtel de ville de La Pêche est un bâtiment de 2 étages tout en bois et à très haute efficacité énergétique. Il deviendra le premier bâtiment institutionnel certifié Passivhaus au Québec.
De forme rectangulaire et implanté dans un axe est-ouest, le bâtiment présente sa longue façade directement au sud, sur la Route Principale. Généreusement fenêtrée, cette façade offrira depuis l’intérieur des vues imprenable sur les collines du Parc de la Gatineau, tout en agissant comme principale source de chauffage pour le bâtiment.
La présence du bois se fait sentir autant à l’intérieur qu’à l’extérieur du projet. Le revêtement de cèdre de l’est à double motifs enveloppe l’ensemble des façades. La structure en lamellé-collé et lamellé-croisé est exposée et mise en valeur dans chacun des espaces intérieurs. La mécanique est entièrement intégrée aux retombées architecturales, laissant les surfaces en bois non-obstruées. La présence du bois et toute sa chaleur sont également ressenties grâce à la stratégie d’éclairage direct et indirect.
Les pans de toiture inclinés qui forment de grands caissons en CLT se révèlent aussi à l’extérieur le soir venu. Ces caissons portent sur toute la profondeur du bâtiment (18m) et offrent un niveau 2 sans aucune colonne ou entrave. En plus de créer un espace envoûtant, cette stratégie structurale optimale et innovante tire le meilleur profit possible du matériau CLT en utilisant au mieux ses capacités mécaniques bidirectionnelles.
Les principes solaires passifs ont guidé la conception de l’ensemble afin d’atteindre un niveau de performance énergétique hors du commun; tous les espaces seront chauffés et climatisés pour seulement 15% de l’énergie qui serait nécessaire à un bâtiment similaire construit selon les normes en vigueur, une économie de 85%.
Parti architectural
Guidé par les principes de l’architecture solaire passive en milieu nordique, la forme du bâtiment est un simple rectangle dont le côté long est orienté dans l’axe est-ouest. Directement au sud, une structure légère en acier repose devant le bâtiment et forme colonnade, balcon et brise-soleil ajouré.
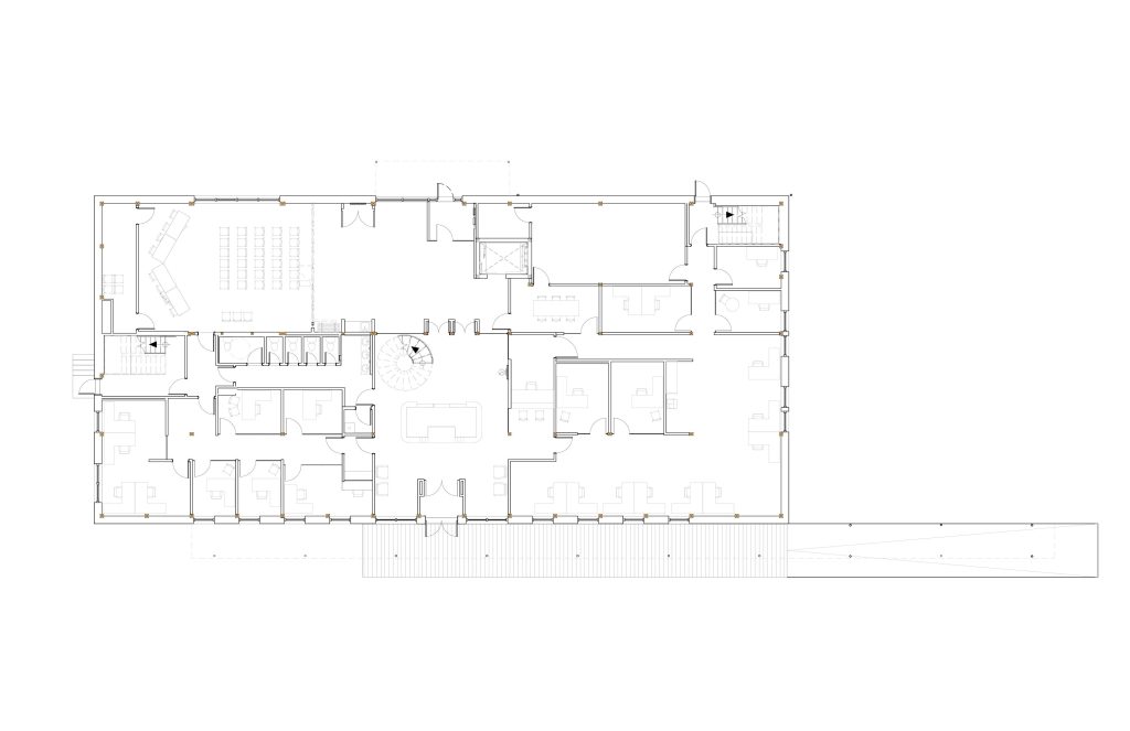
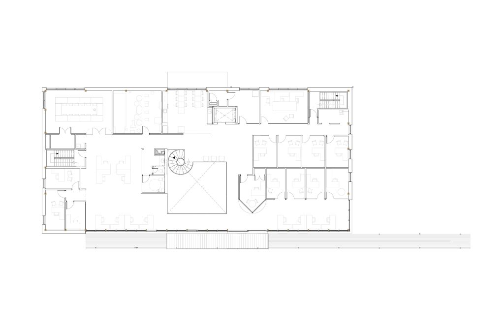
Au centre de l’aire de plancher se retrouve un grand hall traversant qui connecte l’entrée du personnel et le stationnement du côté nord et l’entrée des citoyens et aménagements paysagers du côté sud. Ce hall double hauteur et son escalier sculptural constitue le cœur du projet. Il donne également accès aux espaces publics de l’Hôtel de ville et aux différents comptoirs de services aux citoyens.
Les espaces de bureaux et les aires de travail ouvertes prennent place du côté sud et profitent de vues magnifiques tout en étant baignées d’une généreuse lumière naturelle. Les bureaux de direction sont disposés au centre de l’aire de plancher et bénéficient de la lumière en second jour grâce aux cloisons vitrées qui les longent. Les salles de rencontres et espaces de services ou de rangement divers sont localisés du côté nord, où la fenestration est moins abondante et les vues, moins prisées.
Depuis la Route Principale, le bâtiment est à la fois sobre et intrigant. Sa structure en bois massif, dont le design est inspiré des structures traditionnelles propres aux ponts couverts de la région, lui confère un caractère vernaculaire et une personnalité unique.
Fiche technique du projet
- Titre officiel du projet : Nouvel hôtel de ville de La Pêche
- Localisation : La Pêche, Québec
- Client : Ville de La Pêche
- Architecte : BGLA architecture + design urbain
- Ingénieur en structure : Latéral
- Ingénieur électro-mécanique : Pageau Morel
- Entrepreneur général : Ed Brunet
- Date de fin de projet : Novembre 2024
- Superficie : 1472 m²
- Crédits photo : Stéphane Brügger, sauf indication contraire
- Consultant audio-visuel : Peel Passive House (certificateur)
Description de la firme
BGLA est une firme d’architectes reconnue pour être engagée dans la valorisation du bois et le développement durable. Établie depuis près de 50 ans, elle compte 3 places d’affaires dans les villes de Montréal, Sept-Iles et Québec. Elle est présente et rayonne sur tout le territoire québécois.


























