Métamorphose de l’Insectarium de Montréal par Kuehn Malvezzi / Pelletier De Fontenay / Jodoin Lamarre Pratte architectes en consortium
Pourquoi avoir sélectionné ce projet à titre de vitrine pour Kollectif :
Le nouvel insectarium se distingue par son grand volume de verre accompagné d’un dôme végétalisé qui émerge à ses côtés. Le visiteur entre dans le bâtiment par un jardin qui descend dans le sol. C’est là que s’entame le parcours de la visite, principale force de ce projet. Loin des halls museaux habituels, l’espace de béton et d’acier qui nous accueille place les premières pièces de l’ambiance à venir.
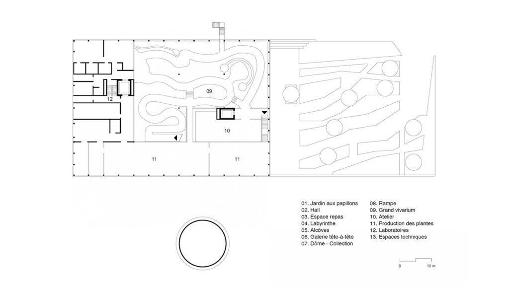
La visite débute dans une faille, projetant le visiteur dans un labyrinthe unique qui crée l’impression d’être un insecte sous terre. Le parcours abouti dans le grand dôme, qui regroupe la collection du musée, habillement disposé par thème et par couleurs. Une rampe mène ensuite dans le grand volume de verre baigné de lumière, qui contraste fortement avec la première partie de la visite. Cette portion de la visite permet de découvrir la collection d’insectes vivants.
Ce projet se distingue par la richesse et la diversité de ses ambiances qui ponctuent la visite. Alors que les musées cherchent de nouveaux moyens d’attirer les visiteurs, l’expérience générée par l’architecture de ce projet saura certainement placer le nouvel insectarium en bonne position. Nous avons également apprécié l’intégration de la muséologie à l’architecture. Difficile de les distinguer puisque l’un s’intègre parfaitement à l’autre. L’expérience est totale.
Un projet qui permet une fois de plus à Espace pour la vie de se distinguer!
Description du projet :
La métamorphose de l’Insectarium de Montréal redéfinit notre relation avec les insectes.
La métamorphose de l’Insectarium de Montréal est achevée. Niché aux côtés du Biodôme et des jardins botaniques dans le quartier des muséums nature de la ville Espace pour la vie* le nouvel Insectarium vise à transformer la relation du public avec les insectes par une approche architecturale et muséologique innovante.
Le projet de l’Insectarium a été réalisé par le bureau berlinois Kuehn Malvezzi, les bureaux montréalais Pelletier de Fontenay et Jodoin Lamarre Pratte architectes, ainsi que les architectes paysagistes atelier le balto basés à Berlin. Cette équipe a remporté en 2014 un concours international pour ce projet, avec un concept visant à fusionner l’architecture et la nature.
Après une période de conception et de construction de sept ans, l’Insectarium ouvre ses portes le 13 avril et révèle au public des centaines d’espèces d’insectes. Le nouvel Insectarium remplace l’ancien bâtiment de l’Insectarium de la ville, qui datait de 1990, et présente d’importantes expositions d’insectes naturalisés et des habitats permettant aux espèces vivantes de s’épanouir. Un labyrinthe sensoriel immersif est au coeur du projet, ainsi qu’un Jardin aux Papillons, un atelier de création et des zones de production.
Inauguré à un moment clé pour repenser les liens entre la biologie humaine et non humaine, le nouvel Insectarium de Montréal apporte une approche critique et nouvelle pour les musées d’histoire naturelle.
Architecture et nature
La conception s’appuie sur une analyse détaillée de 400 ans de musées, d’orangeries, de serres et autres architectures destinées à étudier et à montrer le monde naturel. Conscient de l’histoire destructrice de cette division théorique entre les humains et les autres formes de vie naturelle, le design de Kuehn Malvezzi renverse les normes et les attentes muséologiques.
Contrairement aux musées conçus pour abriter des expositions fluctuantes, l’approche curatoriale de l’Insectarium et son expression muséologique sont contenues dans l’architecture même du bâtiment. Le parcours précisément chorégraphié à travers le bâtiment abolit le clivage entre l’humain et la nature grâce à des expositions accessibles à tous et à des expériences sensorielles immersives.
L’architecture extérieure de l’Insectarium est caractérisée par trois volumes archétypaux qui s’intègrent au paysage du Jardin Botanique. Un Jardin aux papillons clos fait office d’espace d’accueil relaxant. Le jardin descend jusqu’à la base d’une serre qui accueille un hall central et des milieux de vie pour insectes vivants. Au-delà de la serre, un monticule végétalise et énigmatique surgit de la surface. Ce dôme en forme de cocon abrite la collection de l’Insectarium.
Une expérience immersive
L’expérience du visiteur de l’Insectarium commence et se termine par une promenade dans le Jardin aux Papillons. Le jardin estompe la limite entre l’intérieur et l’extérieur, tout en offrant une première rencontre avec la vie entomique, qui évoluera au cours de la progression dans le reste du musée.
Une fois le hall d’entrée franchi, commence l’expérience immersive de la métamorphose sensorielle. Le Labyrinthe emmène les visiteurs sur un chemin descendant incurvé et aux parois inclinées. Le parcours est conçu pour désorienter; pour signaler l’abandon des environnements spatiaux connus et l’entrée dans un labyrinthe souterrain de six alcôves perceptuelles. Les six espaces désorientent les sens humains et simulent la vue, le son et le mouvement des insectes :
- Un oeil, plusieurs facettes reproduit la vision pixellisée d’une mouche;
- Vibrant message amplifie les vibrations de la pièce pour illustrer la capacité sonique d’une sauterelle;
- De brin en brin est un parcours de bâtons à escalader, nécessitant l’équilibre d’un moucheron au sommet d’une feuille;
- Passage étroit transforme les humains en cafards qui doivent se serrer les uns contre les autres;
- Univers UV reproduit la vision ultraviolette d’une abeille;
- Balade au plafond met le monde sens dessus dessous.
Après avoir goûté à l’expérimentation sensorielle dans les six salles, les visiteurs rencontrent finalement des insectes vivants dans la Galerie tête-à-tête. Six boîtes d’observation conçues sur mesure permettent aux visiteurs de faire abstraction du monde extérieur et offrent une vue rapprochée des insectes dans différentes vivariums. Les niches facilitent un contact intime avec les différentes espèces d’insectes, contact qui a été redéfini par les espaces perceptifs et immersifs.
Collection chromatique
La collection de l’Insectarium est abritée et exposée dans une salle spectaculaire de dix mètres de haut en forme de dôme, qui émerge de la terre comme un monticule planté. Sur la paroi intérieure minimale en béton projeté, 72 cadres de présentation exposent la vaste et unique collection d’insectes préservés du musée, qui se déploie sur deux bandes horizontales. La première bande est organisée de manière chromatique pour montrer l’extraordinaire biodiversité et la beauté des insectes. La deuxième bande suit une logique encyclopédique pour révéler le succès évolutif des insectes à travers différents thèmes, tels que l’habitat et le genre. Ces deux niveaux ont pour effet combiné d’étonner et d’instruire le public.
Rencontres interespèces
Réémergeant des textures terrestres souterraines, les visiteurs entrent dans le Grand vivarium. Cette serre spacieuse et baignée de lumière présente un parcours à travers une série de microclimats favorisant la vie de diverses espèces de plantes et d’insectes. Un grand nombre de ces insectes, tels que les papillons et les chenilles, se déplacent librement dans l’espace et peuvent être observés sans obstacles. D’autres, comme les fourmis coupeuses de feuilles, les scarabées géants, les scorpions et les mille-pattes géants, sont présentés dans des vivariums en verre intégrés au paysage botanique du Grand vivarium.
Au centre du bâtiment, l’atelier créatif accueille des présentations, des discussions, des conférences et des activités pédagogiques pour adultes et enfants. L’espace vitré offre des vues sur le Grand vivarium et la zone de production et, au-delà de l’Insectarium, sur le jardin botanique.
Construction bioclimatique
Afin que le bâtiment permette une véritable symbiose entre ses habitants et ses visiteurs, l’Insectarium intègre plusieurs principes bioclimatiques et de durabilité. La forme en escalier du volume de la serre est naturellement orientée vers le sud et permet aux zones situées en surface de bénéficier d’un ensoleillement maximal tout au long de l’année. Des dispositifs mécaniques perfectionnés permettent de récupérer une grande partie de la chaleur générée dans les serres et de la redistribuer pour chauffer le reste du bâtiment.
Les parties souterraines profitent de la masse thermique de la terre pour stabiliser les variations de température et maximiser l’isolation du bâtiment. Une série de systèmes complémentaires tels que des stores textiles, des persiennes motorisées, des puits géothermiques, la récupération des eaux pluviales et l’utilisation de matériaux locaux, durables et sans COV renforcent l’approche bioclimatique du bâtiment et font de l’Insectarium un bâtiment véritablement durable. La certification LEED Or est visée.
* Espace pour la vie regroupe le Biodôme, la Biosphère, l’Insectarium, le Jardin Botanique et le Planétarium Rio Tinto Alcan. Ces cinq institutions prestigieuses forment le plus grand complexe muséal de sciences naturelles au Canada. Ensemble, ils lancent un mouvement urbain audacieux et créatif qui invite chacun d’entre nous à repenser le lien entre l’homme et la nature et à cultiver un nouveau mode de vie.
Fiche technique du projet :
- Titre officiel du projet : Métamorphose de l’Insectarium de Montréal
- Localisation : Montréal, Québec
- Client : Espace pour la vie
- Architecte concepteur et muséologie : Kuehn Malvezzi (Berlin)
- Architecte concepteur : Pelletier de Fontenay
- Architecte concepteur, gestion de chantier : Jodoin Lamarre Pratte architectes
- Architecte de paysage : atelier le balto (Berlin)
- Ingénieur en structure : NCK
- Ingénieur électro-mécanique : Dupras Ledoux
- Ingénieur civil : Génie+
- Date de fin de projet : 2022
- Superficie : 3600 m²
- Budget : 31,8 M$
- Crédit photo : James Brittain
- Autres : La bande à Paul (exécution et surveillance de chantier pour la muésologie), Kuehn Malvezzi avec Double Standards, Berlin (signalisation), CIMA+ (accompagnateur développement durable), Capital Greenhouse (consultant spécialisé en serres) et Nadeau Foresterie Urbaine (préservation des arbres)
Description des firmes :
KUEHN MALVEZZI
Simona Malvezzi, Wilfried Kuehn et Johannes Kuehn ont fondé en 2001 l’agence Kuehn Malvezzi à Berlin. Les établissements publics et les musées sont au coeur de leur pratique. Kuehn Malvezzi a réalisé la réorganisation de nombreuses collections d’art telles que le Belvédère à Vienne, la collection Friedrich Christian Flick au Hamburger Bahnhof – Musée d’Art Contemporain à Berlin, la Galerie Moderne du Saarlandmuseum et la Collection Julia Stoschek à Düsseldorf. Plus récemment, ils ont remporté le concours international pour la réorganisation et le réaménagement du Bâtiment d’Art Contemporain de Genève.
L’agence se concentre également sur la durabilité et la prise en compte des contextes sociaux et environnementaux. Sur un site complexe de centre-ville, l’immeuble de bureaux d’Oberhausen, intégrant une serre sur le toit, réunit les fonctions d’un bâtiment administratif public et d’une production alimentaire durable, pour former une nouvelle centralité urbaine. Dans le 14è arrondissement de Paris, le Lot Petit situé au sein de la ZAC Saint-Vincent-de-Paul est un ensemble de logements sociaux s’intégrant dans le tissu urbain d’un ancien site hospitalier. La maison interreligieuse House of One, qui sera construite sur les fondations de l’église la plus ancienne de Berlin, est un autre projet en cours témoignant d’un contexte interculturel complexe.
Parmi les prix et récompenses reçus, citons le Canadian Architect Award, des nominations pour le prix Mies van der Rohe, et la qualification en tant que finalistes du DAM Preis. Les travaux de Kuehn Malvezzi ont été entre autres présentés à la Biennale de Venise, à Manifesta 7, à la Biennale d’Architecture de Chicago et à la Triennale d’Architecture de Lisbonne.
Pour visiter le site internet de Kuehn Malvezzi…
PELLETIER DE FONTENAY
Fondée en 2010 par Hubert Pelletier et Yves de Fontenay, Pelletier de Fontenay est une pratique architecturale basée à Montréal. L’agence s’est rapidement forgé une solide réputation en tant que concepteurs de projets publics contemporains et travaille actuellement sur des projets de musées, d’écoles et de bibliothèques.
Pelletier de Fontenay a été lauréat de deux concours internationaux: celui de l’école LOSBATES près de Prague, ainsi que celui de l’Insectarium de Montréal, un projet en partenariat avec l’agence berlinoise Kuehn Malvezzi et Jodoin Lamarre Pratte architectes. Localement, la firme a remporté le concours du Lab-École Shefford et celui du centre communautaire Sanaaq au centre-ville de Montréal. Le travail de l’agence a également été souligné par l’attribution de prix importants dont le prix de l’Architectural League, une des reconnaissances les plus prestigieuses pour les architectes émergents au niveau Nord-Américain.
Le studio est particulièrement intéressé par la relation entre les concepts abstraits de l’architecture et leurs incarnations matérielles. Cette approche, née d’une double fascination pour la forme et la construction, est approfondie par une implication dans l’enseignement et la recherche. Parallèlement à leur pratique, Pelletier de Fontenay poursuit des projets de recherche en architecture dont le projet Invariations, une exploration créative abstraite des principes fondamentaux de l’architecture et Architectures de la Nature Captive, un projet se penchant sur la relation entre le construit et le vivant.
Pour visiter le site internet de Pelletier de Fontenay…
JODOIN LAMARRE PRATTE ARCHITECTES
Jodoin Lamarre Pratte architectes consacre sa pratique au service de la collectivité par la réalisation de projets dans les domaines institutionnels de la santé, du transport, de l’enseignement, de la recherche et de la culture. La firme oeuvre à la conception d’une architecture humaine, sensible, intelligente et respectueuse de son environnement, alliant créativité, connaissances et innovation. Elle valorise la diversité et la complémentarité des compétences et des expertises des membres de sa grande équipe et perpétue une culture de collaboration, d’inclusion, d’intégrité et de rigueur.
C’est dans cet esprit qu’ils travaillent avec leurs clients et partenaires à la création de bâtiments durables. La durabilité se manifeste de façon holistique dans tous les aspects du bâtiment, qu’il s’agisse de la flexibilité des usages, de la pérennité des systèmes, de la performance énergétique globale, de l’empreinte écologique des matériaux, de la qualité des milieux de vie, de l’intégration du bâti à son environnement ou de la résilience face aux changements climatiques.
Récipiendaire de plus de 150 prix d’excellence et distinctions en architecture, la firme a démontré à de nombreuses reprises sa capacité à concevoir et à réaliser des projets d’une grande qualité architecturale. Fondée en 1958 par Bernard Jodoin, Denis Lamarre et Gérard Pratte, Jodoin Lamarre Pratte architectes regroupe aujourd’hui une équipe de 140 architectes, technologues, techniciens, designers et autres professionnels sous la direction d’Alain Boudrias, Michel Broz, Catherine Demers, Martine Gévry, Sylvain Morrier et Nicolas Ranger.
Pour visiter le site internet de Jodoin Lamarre Pratte architectes…
Pour visiter les « Projets du mois » précédents publiés sur Kollectif…




















