Pourquoi avoir sélectionné ce projet à titre de vitrine pour Kollectif ?
À partir de la rue, nous sommes loin d’imaginer ce qui se cache au bout d’une petite allée discrète qui se faufile entre deux immeubles résidentiels du Plateau-Mont-Royal. Et pourtant. On y retrouve un superbe exemple de densification douce, qui est le résultat de la transformation d’un bâtiment de fond de cour en maison unifamiliale.
Le génie du projet réside dans la complexité formelle de la résidence, qui devait à la fois offrir un généreux apport de lumière naturelle aux occupants, tout en garantissant une intimité au quotidien. Le jeu volumétrique proposé par l’équipe de Paul Bernier a solutionné ces enjeux, en plus d’assurer une fluidité entre les espaces intérieurs.
Difficile également de passer sous silence la « robe » d’acier Corten qui enveloppe une partie l’immeuble, dont le gigantesque escalier de la terrasse arrière qui devient partie intégrante de la signature architecturale. On apprécie d’ailleurs le contraste entre la sobriété du décor intérieur et la forte personnalité des espaces extérieurs, venant ainsi équilibrer l’ensemble architectural.
Description du projet :
La Maison De Lorimier est issue de la transformation d’un bâtiment en fond de cour d’un lot sur le Plateau-Mont-Royal en maison unifamiliale. Cette maison, pour une jeune famille, s’implante sur un lot densément construit, lui donnant le caractère d’un lieu caché intime et lumineux dans un tissu urbain dense et dynamique.
L’implantation du bâtiment existant et sa forme atypique présentaient des contraintes importantes quant à l’apport de lumière naturelle, la protection de l’intimité et l’utilisation d’espaces extérieurs. Pour y parvenir, le bâtiment a été sculpté par addition et soustraction au volume existant.
De l’avenue De Lorimier, au fond de l’allée étroite, l’entrée de la maison en fond de cour est marquée par un volume en acier Corten qui la surplombe.
À l’intérieur, l’espace se dilate. Le volume de la maison est lisible sur toute sa hauteur et est baigné de lumière zénithale traversant les espaces de vie d’un étage à l’autre.
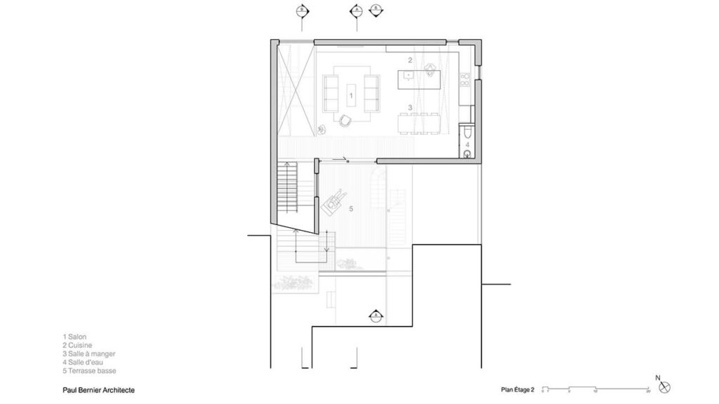
À l’étage, le volume du séjour et de la cuisine est éclairé naturellement par le haut. Deux petites fenêtres offrent des percées sur l’activité de la ruelle alors qu’une ouverture pleine hauteur incite à l’appropriation de la terrasse basse.
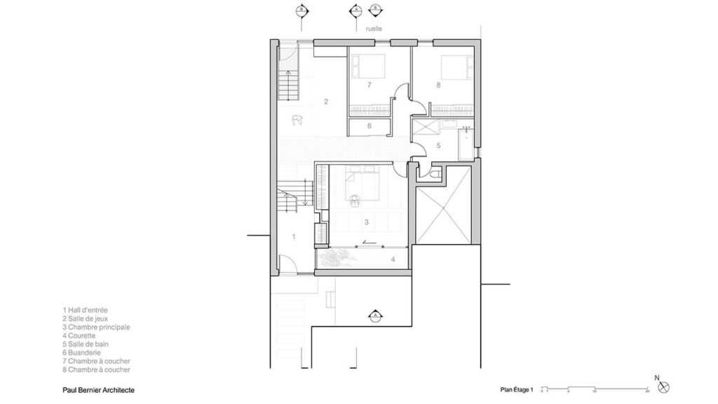
Au rez-de-chaussée, situé en contrebas et accessible depuis l’entrée par des gradins de béton et de bois, se trouvent les espaces privés. La lumière naturelle provenant de l’étage au-dessus est filtrée à travers une passerelle ajourée venant ainsi éclairer la circulation vers les chambres. La chambre principale, affichant la charpente en bois, est baignée d’une lumière diffuse provenant d’une grande baie vitrée donnant sur une courette privée.
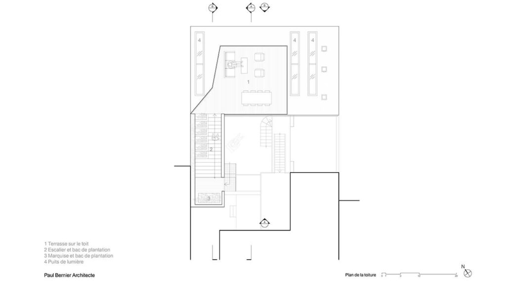
Les deux niveaux de toit accueillent des terrasses. La terrasse basse, attenante à l’espace de vie, est protégée du soleil. La contiguïté avec les voisins lui confère un caractère de cour intérieure. La terrasse haute, située sur le toit de l’étage et accessible par l’escalier et les gradins de plantation, permet de voir au loin et de profiter du soleil.
Ce type de projet répond aux enjeux actuels de densification douce en milieu urbain où une grande attention doit être portée sur l’intervention à concevoir mais aussi sur le contexte dans lequel elle va s’insérer. De surcroît, ce projet a permis la requalification d’un bâtiment d’entreposage en habitation dans un contexte de besoin grandissant de logements.
Fiche technique du projet :
- Titre officiel du projet : Maison De Lorimier
- Localisation : Montréal, Québec
- Client : Particuliers
- Architecte : Paul Bernier Architecte
- Ingénieur en structure : Calculatec
- Entrepreneur général : Construction Libersan
- Crédit photo : Raphaël Thibodeau
Description de la firme :
Paul Bernier Architecte est une agence d’architecture contemporaine basée à Montréal. Les projets sont construits à travers le Québec, en milieu urbain et en milieu naturel. Le travail de l’agence se caractérise par une grande importance accordée à la lumiere naturelle, un souci du détail ainsi que par une approche inventive et contemporaine dans la façon d’habiter l’espace.
Pour visiter le site internet de la firme…
Pour visiter les « Projets du mois » précédents publiés sur Kollectif…


























