Pourquoi avoir sélectionné ce projet à titre de vitrine sur Kollectif?
Rares sont les occasions, pour un architecte ou designer, de revisiter son propre projet vingt ans plus tard. C’est ce récit singulier qui nous a d’abord interpellés : la possibilité de dialoguer avec sa propre œuvre, entre mémoire et actualisation.
L’intervention de YH2 séduit par sa justesse. Elle repose sur la continuité architecturale, contrant ce réflexe parfois instinctif des concepteurs d’effacer la signature d’origine pour en imposer une nouvelle. Au contraire, plusieurs éléments emblématiques — comptoir principal, luminaires, garde-corps — ont été préservés, offrant une nouvelle lecture à l’intervention initiale du début des années 2000. Un geste sage, à une époque où la retenue devrait primer sur le réflexe de la nouveauté. Ceci est peut-être également attribuable à la qualité de l’aménagement initial.
Les ajouts, tels que la voûte d’entrée en bois massif, les motifs de plancher ou le bloc central translucide, s’intègrent avec une grande finesse. Le choix de matériaux nobles renforce l’intemporalité de l’ensemble et témoigne d’une approche durable, sensible et respectueuse du lieu.
Ce projet illustre ce que la rénovation contemporaine devrait incarner : une réinterprétation frugale et réfléchie de l’existant, à une époque où l’on doit réduire notre empreinte dans le milieu de l’architecture, du design d’intérieur et de la construction.
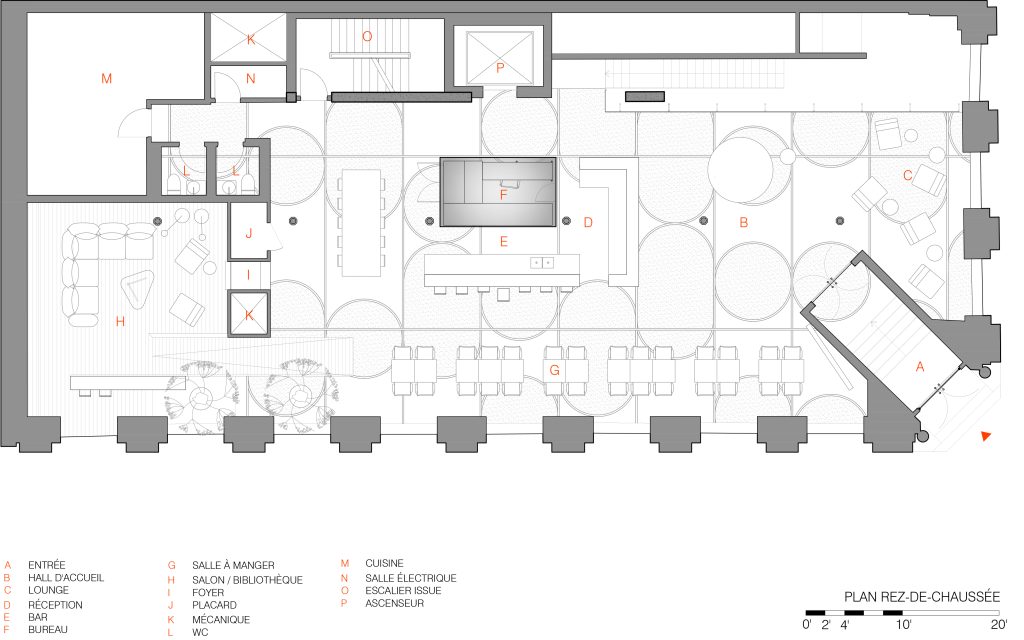
Description du projet
Retravailler un projet 20 ans plus tard est un privilège rare pour un architecte. C’est pourtant l’histoire de l’hôtel Gault, premier hôtel boutique de Montréal, réalisé par l’atelier d’architecture yh2.
Conçu pour la première fois en 2004, il fallait désormais moderniser son lobby en répondant aux besoins actuels sans effacer l’âme du lieu qui avait été créée.
L’idée fondatrice de sa première transformation reposait sur l’intégration d’une architecture contemporaine et épurée au sein d’un bâtiment patrimonial.
Deux décennies plus tard, l’identité du lobby s’est estompée. L’usure du temps et les changements successifs ont effacé les éléments marquants du projet. Cette seconde intervention vise alors à retrouver l’essence du lieu en misant sur la continuité architecturale.
La matière, déjà au cœur du premier projet, prend ici une nouvelle dimension. Le vestibule est désormais habillé d’une voute en bois massif d’acajou cintré, écho aux arcs des fenêtres existantes. Celle-ci marque la transition entre la rue animée et l’intérieur feutré de l’hôtel. Au sol, l’ancienne chape de béton laisse place à un nouveau motif composé de mosaïque, pierre et céramique. Ses courbes font écho aux arches du bâtiment et adoucissent les lignes rigoureuses de l’architecture.
Pour redonner au lobby son ambiance singulière, l’éclairage joue un rôle central. Un travail sur la lumière indirecte met en valeur les éléments clés : arches, plafond à caissons métalliques, textures. Au cœur de l’espace prend place une boite de verre translucide abritant le bar et le bureau de service, véritable lanterne diffusant une lumière douce dans toutes les directions.
Bien plus qu’une rénovation esthétique, cette métamorphose est une déclaration d’intention : l’hôtel Gault réaffirme son engagement envers ses clients en leur proposant un cadre raffiné dès les premiers instants. Le lobby devient une signature, celle d’un établissement qui allie design local, luxe discret et service personnalisé, tout en conservant son caractère unique dans le paysage hôtelier montréalais.
Cette réintervention poursuit une quête de longévité et de cohérence architecturale. Face à une époque marquée par la surconsommation et l’obsolescence, elle propose une réponse raisonnée.
Elle prolonge le dialogue entre architectures d’époques différentes, en misant sur le savoir-faire local, la mise en valeur de la matière et la revalorisation de l’existant.
Fiche technique du projet
- Titre officiel du projet : Lobby de l’hôtel Gault
- Localisation : Montréal, Québec
- Client : Gault inc.
- Architecte : Atelier yh2
- Entrepreneur général : GP5T Construction
- Date de fin de projet : Avril 2025
- Superficie : 372 m2
- Crédit photo : Adrien Williams
- Autres consultants : Studio Luminaire (éclairage), Atelier Vaste (ébénisterie), Maxime Clément (carreleur)
Description de la firme
yh2 est un atelier de conception architecturale fondé en 1994 par le duo d’architectes Loukas Yiacouvakis et Marie-Claude Hamelin.
La pratique de l’atelier se caractérise par un intérêt particulier pour le caractère du lieu et le souci du détail, tant dans l’implantation du bâtiment que dans le design de chaque élément de mobilier conçu pour le projet.
Pour nous, l’architecture est l’Art du Lieu et notre objectif est de faire de chaque projet un Lieu marquant possédant une personnalité forte et spécifique afin que le projet perdure au-delà des modes du moment et acquiert un caractère de permanence.
Au fil des ans, l’atelier a développé plus d’une centaine de projets à toutes les échelles, alternant dans sa pratique des projets d’aménagement intérieur pour bureaux ou hôtel, des résidences privées en milieu urbain ou naturel et des complexes hôteliers ou de villégiatures.

























