Pourquoi avoir sélectionné ce projet à titre de vitrine pour Kollectif ?
Ce projet a attiré notre attention par son élégance et sa sobriété. Le défi était grand: comment rendre ce local en sous-sol et à la forme complexe en un lieu fonctionnel et agréable? La firme ISSADESIGN a résolu ces enjeux par une séparation habile des espaces selon les deux fonctions principales, une palette restreinte de matériaux soigneusement choisie et l’intégration de végétaux.
Ce projet représente bien une notion chère à Kollectif: le design de qualité ne doit pas être réservé aux projets d’envergure bénéficiant d’un budget important. Chaque projet, quels que soient son échelle, son programme et son budget, doit être vu comme une opportunité de créer et d’atteindre les plus hauts standards de qualité; et c’est précisément le cas du salon de manucure Les ongles Diva nails.
La série d’arches, clin d’œil à la forme des ongles, permet de donner une personnalité propre à l’espace, tout comme la couleur rose inspirée du lotus. C’est cette série de gestes simples et bien dosés qui permet à ce commerce de se distinguer.
Alors que la fin de plusieurs mesures sanitaires approche, il est plus pertinent que jamais de miser sur la qualité du design pour inciter et motiver les gens à redécouvrir les commerces et services de nos centres urbains!
Description du projet :
Situé au cœur de Montréal, le salon de manucure Les ongles Diva nails cherche à offrir une nouvelle expérience à sa clientèle. Imaginé par l’agence ISSADESIGN, le projet tend à explorer le thème de la floraison. L’espace est conçu pour offrir à sa clientèle une évasion temporaire de la vie urbaine tout en répondant aux exigences et aux besoins de la personne moderne qui recherche l’agilité et la praticité dans les services de beauté.
L’identité de la marque se veut l’embryon du projet. Elle va bien au-delà de l’esthétisme en créant un espace qui permet une meilleure expérience utilisateur et la création d’un sentiment d’appartenance pour le client. Inspiré par la fleur de lotus, le projet entretient une relation étroite avec la nature, non seulement par l’utilisation de la couleur, de fleurs et de plantations à petite échelle, mais aussi par des solutions plus subtiles mises en œuvre dans la conception. Autrement dit, les motifs, les formes du mobilier, les éclairages et autres composants du projet ont tous été sélectionnés soigneusement et dans l’esprit de la biophilie.
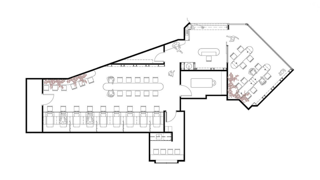
Deux secteurs d’activité sont aménagés en raison de contraintes techniques et de besoins particuliers en ventilation. On retrouve un secteur de pose d’ongles tandis que le deuxième met l’accent sur les manucures et les pédicures. L’aire d’accueil vient délimiter ces zones et répartir les services.
Des espaces de présentation font un clin d’œil à la forme des ongles par la création d’arches. Ces rangements encastrés ont pour but de mettre de l’avant la grande sélection de couleurs de vernis qu’offre le salon. Les tables de travail faites sur mesure se veulent un parfait rappel de cette courbe. Dans l’ensemble, le projet est à l’image de ses propriétaires, soit accessible et invitant.
Pour plus d’information à propos du projet…
Fiche technique du projet :
- Titre officiel du projet : Les ongles Diva nails
- Localisation : Montréal, Québec
- Client : Les ongles DIVA nails
- Designer : ISSADESIGN, design de l’environnement intégré
- Superficie : 135 m²
- Crédit photo : David Boyer
- Source : v2com-newswire.com
Description de la firme :
ISSADESIGN, agence de design d’environnement intégré, souhaite inspirer, sensibiliser, conseiller chaque organisation corporative, commerciale ou institutionnelle à la recherche de solutions sur le plan du design, tant en termes d’aménagement intérieur que de technologie de l’architecture saine. Les designers conçoivent et développent des projets en symbiose avec l’environnement du client en considérant et en intégrant leur univers, l’esprit de la marque, les besoins des utilisateurs. ISSADESIGN souhaite contribuer à ce que toute entité considère et intègre le design comme levier de croissance, valeur ajoutée et gage de succès.
Motivés par les principes de développement durable, l’équipe à cœur de répondre aux besoins, attentes et envies des clients en créant des concepts qui traversent l’épreuve du temps. Grâce à des principes simples et peu coûteux, les designers intègrent des solutions écologiques à leurs concepts, et ce quel que soit le budget et la taille du projet. Le client est au cœur du processus dans chacun des projets. L’équipe de design immerge dans son univers afin de développer un concept en harmonie avec la philosophie de sa marque. Collaboration, coordination et suivi sont les fondements de l’approche.
L’équipe d’ISSADESIGN est toujours à la recherche de solutions créatives et de techniques innovantes. Sa curiosité insatiable la pousse à dépasser les attentes des clients en développant des espaces uniques où se marient esthétisme, ergonomie et fonctionnalité.
Pour visiter le site internet de la firme…
Pour visiter les « Projets du mois » précédents publiés sur Kollectif…









