L’École des Cerisiers (Lab-École de Maskinongé)
Pourquoi avoir sélectionné ce projet à titre de vitrine sur Kollectif?
Oui, oui. Un deuxième Lab-École en moins de trois mois comme Projet du Mois. Nous en sommes conscients.
Mais bon, on se retrouve avec une réalisation hors pair, issue d’une réflexion collective exemplaire à l’échelle provinciale, d’une concertation intensive avec le milieu, ainsi qu’une architecture sensible qui renouvelle la typologie scolaire au Québec.
D’une part, le bâtiment se marie habilement avec le contexte local, faisant écho aux granges du secteur (forme et matérialité) et des galeries couvertes des maisons avoisinantes (préau autour de l’école).
D’autre part, la multiplicité des espaces pédagogiques autant à l’intérieur (corridor habité, bibliothèque éclatée, etc.) qu’à l’extérieur (potager, classe à ciel ouvert, etc.) crée un environnement flexible et très stimulant pour les occupants, en plus de rentabiliser l’ensemble de l’école. Le décor épuré génère une atmosphère de détente, qui favorise la concentration et l’apprentissage.
Nous sommes charmés.
Description du projet
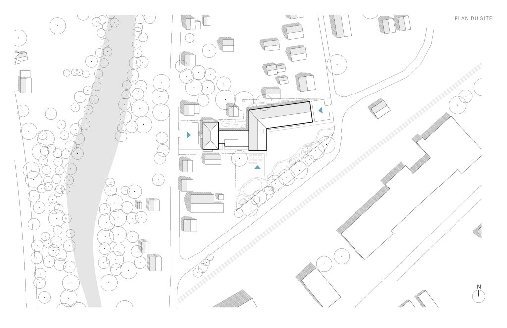
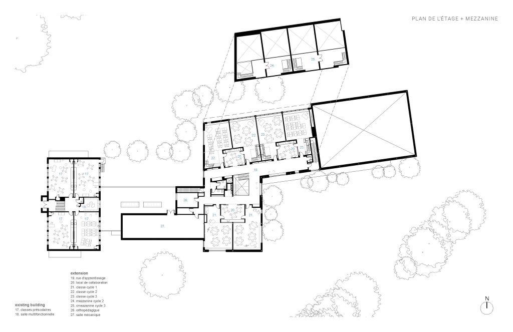
Situé au cœur de la municipalité de Maskinongé, le projet d’agrandissement de l’école primaire des Cerisiers visait à accueillir sous un même toit tous les élèves du village. Inspiré par le modèle de la rue d’apprentissage, ce projet offre la création d’un parcours éducatif à l’échelle du site. Avec sa configuration linéaire, le nouveau bâtiment occupe une présence distincte sur chacune des trois rues environnantes. Cette disposition structure les fonctions principales de l’école et multiplie les accès au bâtiment, créant ainsi un environnement accueillant pour les élèves et ouvert à la communauté.
Au centre de l’école, la salle à manger offre un lieu de rassemblement convivial et lumineux. Cet espace dispose d’une cuisine ouverte et de liens directs avec la cour de récréation, le préau et les jardins. L’école des Cerisiers se distingue par son programme éducatif qui intègre l’alimentation aux activités scolaires, utilisant les récoltes pour cuisiner et apprendre, tout en sensibilisant les élèves à l’importance des produits locaux.
Inspiré par l’architecture vernaculaire de la région, le projet se caractérise par une simplicité formelle, par son échelle intime et son grand toit à double versant qui s’intègre harmonieusement au contexte du village de Maskinongé. L’utilisation prédominante du bois, autant pour la charpente que pour les finitions intérieures, contribue au rayonnement des ressources et du savoir-faire local tout en favorisant la création d’espaces d’apprentissages appropriables et inspirants.
Les espaces extérieurs sont utilisés à leur plein potentiel pour offrir un environnement sain et verdoyant aux élèves et à la communauté, avec une variété de lieux de rencontre, de jeux et de découvertes. Bordée de grands peupliers matures, la cour ensoleillée est traversée par des axes de circulation menant à la galerie couverte où les élèves se rassemblent. Le nouveau gymnase, par sa position stratégique, offre des ouvertures sur les jeux sportifs extérieurs et permet un accès aux résidents du village en dehors des heures de cours.
Le projet du Lab-École de Maskinongé présente un environnement scolaire adapté à sa réalité locale, un lieu riche en expériences humaines et pédagogiques.
Fiche technique du projet
- Titre officiel du projet : L’École des Cerisiers (Lab-école de Maskinongé)
- Lieu : Maskinongé, Québec
- Client : Centre de services scolaire du Chemin-du-Roy
- Architectes : Lucie Paquet / Paulette Taillefer + Leclerc architectes
- Ingénieur en structure et civil : Stantec
- Ingénieur en électro-mécanique : Stantec
- Architecte de paysage : Mousse Architecture de paysage
- Entrepreneur général : Therrien
- Date de fin de projet : Janvier 2024
- Crédits photos : David Boyer / Maxime Brouillet
Description des firmes
Lucie Paquet architecte
Architecte graduée de l’Université McGill, Lucie Paquet s’implique auprès de firmes œuvrant principalement dans le milieu institutionnel pour ensuite fonder sa propre pratique en 2017. Impliquée sur des projets d’échelles variées, elle préconise une démarche inclusive, une architecture contextualisée et des pratiques de construction durables. Parallèlement à sa pratique, elle participe activement au développement des connaissances et des techniques de construction intégrant le matériau bois aux bâtiments.
Paulette Taillefer architecte
Originaire des prairies, Paulette Taillefer entame ses études en architecture à l’Université du Manitoba et complète sa maîtrise à l’Université de Montréal. Elle poursuit sa carrière au sein du bureau d’Henri Cleinge architecte œuvrant dans le milieu résidentiel, culturel et commercial à petite échelle avant de fonder sa propre firme en 2017. Se spécialisant en rénovations et transformations, elle approfondit présentement ses connaissances en conception et construction durable pour apporter des solutions élégantes et efficaces au cadre bâti existant.
Leclerc architectes
La firme a été fondée à Montréal en 1957 sous le nom de Lemay-Leclerc par Georges Lemay et Claude Leclerc. Dès les premiers mandats, la firme s’est orientée vers des clients institutionnels en privilégiant les commissions scolaires, les églises et paroisses ainsi que le domaine hospitalier.
À la fin des années 1980, les deux bureaux Lemay architectes et Leclerc architectes se sont dissociés. C’est à partir de cette année que Leclerc architectes s’est concentré dans le domaine de l’éducation.
Depuis 2016, Pascal Beaudoin, Thomas Gauvin-Brodeur et Frédéric Séguin poursuivent une aventure débutée il y a plus de soixante-sept ans, contribuant quotidiennement, au sein d’une équipe passionnée, à la création et à l’amélioration du patrimoine scolaire québécois. Chaque nouveau projet représente une occasion de concevoir un milieu de vie unique, favorisant la réussite éducative et facilitant le travail des enseignants. Le projet du Lab-École de Maskinongé en fait partie, et nous sommes fiers d’avoir contribué à ce projet innovant.


























