Pourquoi avoir sélectionné ce projet à titre de vitrine sur Kollectif?
La Galerie FOIL nous a séduits par la manière exemplaire dont elle redonne vie à un bâtiment industriel centenaire en révélant plutôt qu’en effaçant. L’intervention d’Atelier L’Abri témoigne d’une lecture sensible et respectueuse du lieu : structure mise à nu, lumière retrouvée, matériaux d’origine sublimés. La requalification n’est pas un prétexte, mais un acte de transmission.
Le projet illustre aussi comment l’architecture peut catalyser un changement urbain positif. En s’ouvrant sur le nouveau parc des Gorilles, la galerie contribue à réactiver un secteur longtemps délaissé et démontre qu’un patrimoine menacé peut devenir moteur de création, de mémoire et de lien social.
FOIL nous touche également par son ambition culturelle. L’espace hybride, comprenant galerie, café et lieu d’expériences sensibles, propose un rapport à l’art accessible, vivant et ancré dans la communauté. Chaque détail, du mobilier au parfum d’ambiance, participe à une expérience cohérente où l’architecture soutient la rencontre et la découverte.
La Galerie FOIL rappelle avec finesse que transformer un bâtiment, c’est aussi transformer une manière d’habiter la ville.
Description du projet
Galerie FOIL : art contemporain, patrimoine industriel et expérience sensible
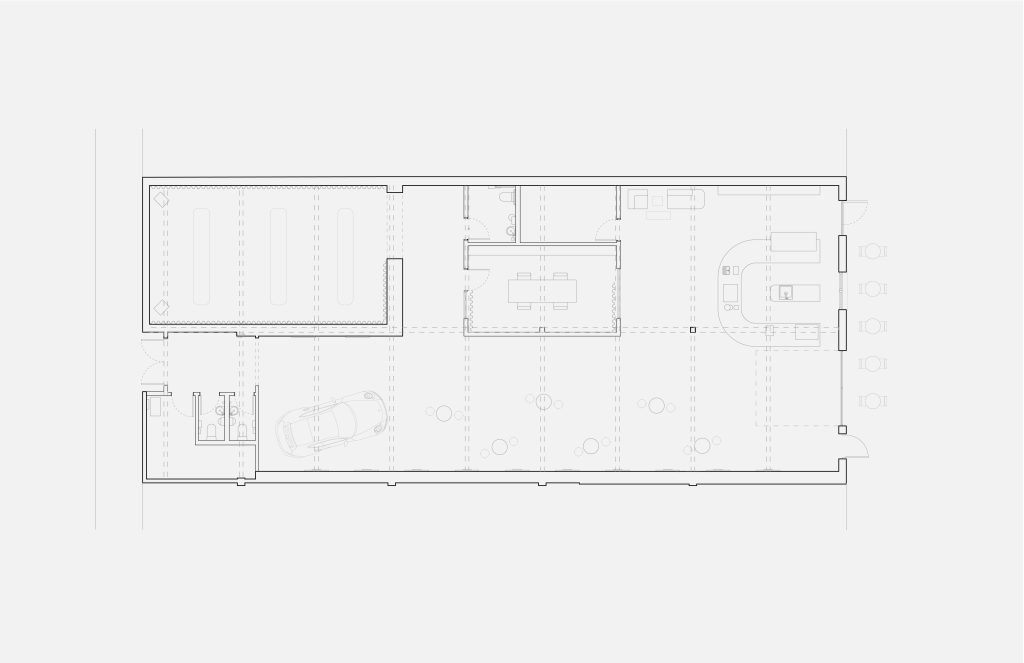
Implantée au cœur du quartier Mile-Ex à Montréal, la Galerie FOIL est une destination singulière où l’art contemporain dialogue avec le quotidien. Le projet de revitalisation architecturale mené par Atelier L’Abri réinvestit deux suites vacantes d’un bâtiment industriel centenaire, afin d’en révéler pleinement la valeur historique, culturelle et matérielle. Fondée par les artistes Fvckrender (Frédéric Duquette) et Baeige (Jo-Anie Charland), l’espace hybride associe galerie d’art et café pour évoluer entre exposition, hospitalité et expérience sensorielle. Lieu d’expression, de rencontre et de découverte, FOIL (Finer Objects in Life) s’inscrit dans une volonté de rendre l’art accessible, vivant, et ancré dans la communauté. En lien direct avec le nouveau Parc des Gorilles, la galerie participe à la transformation d’un secteur en mutation, illustrant de manière exemplaire comment la requalification de notre patrimoine bâti peut devenir moteur de créativité, de préservation et de lien social.
Construit dans les années 1910, l’édifice occupé par la Galerie FOIL témoigne de l’histoire industrielle du secteur Marconi-Alexandra. Initialement exploité par la Canadian Explosives Limited (CXL), il a notamment servi d’usine de production de munitions pendant la Première Guerre mondiale. Le lieu conserve également la mémoire ouvrière de la Seconde Guerre mondiale, marquée par la contribution essentielle des femmes à l’effort de guerre. Témoin de ce passé, le bâtiment constitue un exemple rare et précieux de l’architecture industrielle de l’époque, avec son spectaculaire toit en dents de scie soutenu par de grandes fermes en bois massif à claire-voie. Cet assemblage remarquable repose sur une imposante structure apparente en béton brut qui cadre les espaces intérieurs de l’édifice.
Longtemps négligée, cette ancienne usine risquait de disparaître sous la pression immobilière. La transformation du bâtiment s’est amorcée avec l’arrivée récente de nouveaux commerces occupant cette rangée singulière de suites industrielles donnant sur un petit tronçon en cul-de-sac de la rue Waverly, historiquement interrompu par le chemin de fer du Canadien Pacifique. L’ancien tracé oblique des rails coupant l’îlot en diagonale donne au site un caractère unique et est à l’origine du plan d’aménagement du Parc des Gorilles inauguré en 2024. Ce projet trouve son origine dans la mobilisation citoyenne locale pour la préservation du lieu en friche qui a permis sa réappropriation publique et la végétalisation de l’îlot. La reconversion opérée par le projet FOIL participe ainsi à un effort plus grand pour redonner au bâtiment et au site une présence active dans la ville. Elle rend hommage au patrimoine matériel et humain du lieu, en le transformant en espace public à vocation culturelle.
L’intervention architecturale signée Atelier L’Abri repose sur une lecture sensible du bâtiment existant : elle révèle un caractère brut qu’elle adapte aux nouveaux usages et respecte l’héritage de l’usine d’armement tout en projetant l’espace de la galerie dans un présent résolument contemporain et en évolution.
Le projet conserve et sublime la structure d’origine. Masqué dans l’ensemble du bâtiment sous les couches de peintures successives, cet élément fondamental du lieu est révélé. Les plafonds en planches, les fermes de bois massif, les poutres et colonnes de béton sont nettoyés avec soin au jet de sable pour retrouver les textures centenaires et leurs teintes naturelles. La dalle de sol est nettoyée et scellée, préservant et exposant aux visiteurs les traces de plus d’un siècle d’histoire et d’activités. De nouvelles percées en toiture sont ouvertes pour laisser entrer la lumière naturelle, réactivant ainsi les qualités spatiales du bâtiment dont le toit en dent de scie avait été obstrué au fil du temps.
Un volume central de métal brossé à la main, inséré au cœur du projet, articule les espaces publics de la galerie et contient ses fonctions privées sans compromettre la lecture de la structure existante. Les murs d’exposition périphériques, laissés libres et habillés de surfaces blanches, assurent une flexibilité d’accrochage et un contraste net avec les textures conservées des planchers et plafonds. L’ensemble des interventions repose sur une logique de revalorisation, de sobriété matérielle et de cohérence contextuelle, démontrant que le réemploi intelligent de notre patrimoine bâti peut répondre avec justesse aux enjeux contemporains d’évolution de nos centres urbains et de transformation responsable de nos anciens sites industriels.
À l’avant de l’espace reconverti, le café lumineux s’ouvre sur le Parc des Gorilles par une grande porte de garage vitrée, accueillant les visiteurs dans une atmosphère à la fois brute et raffinée. Le comptoir courbe, aux lignes douces et minimalistes, est recouvert d’un enduit de microciment artisanal qui évoque la continuité avec la matérialité du lieu. À l’arrière, une salle de projection fermée offre un cadre intime pour les œuvres audiovisuelles et les événements immersifs. Le mobilier sur mesure du café, conçu par le designer montréalais Raymond Raymond, introduit une chaleur sobre et fonctionnelle qui contraste avec la rigueur de la structure existante. Le volume central de métal accueille un espace de travail et de rencontre, meublé d’une grande table de l’ébéniste Essai Mobilier et de chaises danoises Vipp, affirmant une esthétique épurée, à la croisée du design local et des références intemporelles.
Plus qu’un simple lieu d’exposition, la Galerie FOIL propose une expérience artistique plurielle, sensible et inclusive. Sa programmation réunit les œuvres physiques et numériques des artistes fondateurs Fvckrender et Baeige, tout en accueillant régulièrement d’autres créateurs de la scène contemporaine, tels que J3000, Vincent Tsang, Andrea Wilkin, Victor Mosquera ou Zoë Winters pour l’exposition inaugurale. Une Porsche Targa 1970 restaurée, exposée au centre de l’espace, agit comme sculpture manifeste, brouillant les frontières entre art, design, culture et histoire. L’expérience sensorielle est soigneusement orchestrée : ambiance sonore signée Olivier Lamontagne (The Holy), parfum d’ambiance créé sur mesure par la maison new-yorkaise D.S. & Durga, café torréfié localement par ZAB Café et douceurs signées Mélilot. Ce soin apporté aux détails transforme chaque visite en expérience immersive complète.
Lieu d’échange et de rencontre, FOIL accueille également des événements culturels, des lancements et des matinées festives comme les AM:PLIFIED, alliant croissants et DJ sets dans une ambiance décontractée. Pensée comme un espace ouvert et vivant, la galerie élargit le rôle traditionnel des lieux de diffusion pour en faire un laboratoire artistique ancré dans son quartier, au croisement des pratiques contemporaines, de la convivialité et de la création. La galerie s’impose sobrement comme une nouvelle voix dans la scène culturelle montréalaise. Elle célèbre la beauté dans sa forme la plus pure, un hommage aux objets fins de la vie.
Fiche technique du projet
- Titre officiel du projet : Galerie Foil
- Localisation : Montréal, Québec
- Client : Galerie Foil
- Architecte : Atelier L’Abri
- Entrepreneur général : Construction Modulor
- Date de fin de projet : Février 2025
- Superficie : 350 m2
- Crédit photo : Alex Lesage
- Autre consultant : EDP (éclairage)
Description de la firme
Atelier L’Abri est un bureau d’architecture basé à Montréal. L’atelier se spécialise en construction écologique, saine et durable. Il prône une architecture innovante, mettant de l’avant la qualité, le bien-être et le caractère humain et social de nos environnements. L’Abri conçoit des projets intemporels, sur mesure et à l’échelle humaine.
L’atelier croit fermement qu’une architecture responsable et respectueuse de son contexte et de son environnement peut contribuer à améliorer nos milieux et notre qualité de vie. L’approche du bureau prône l’efficacité, la durabilité et l’approvisionnement local. Le bureau a pour mission de bâtir des projets pérennes, créateurs de valeurs et porteurs d’un impact environnemental, social et économique positif.
Atelier L’Abri a reçu le Prix de la Relève 2025 de l’OAQ, ainsi que les prix de Small Firm of the Year aux Architecture Master Prize, Best Young Firm aux A+Awards, et un Innovation Award du Gouvernement de Dubaï.































