Pourquoi avoir sélectionné ce projet à titre de vitrine sur Kollectif?
Ce type de commerce de proximité marque rarement l’esprit en matière de design. Et pourtant. L’expérience du client et la mise en valeur des produits méritent une attention particulière pour y augmenter l’attractivité.
C’est ce nous adorons avec cette réalisation de Dupont Blouin : une signature colorée et raffinée, qui met élégamment en valeur les produits. Le bois des étagères amène un peu de chaleur et de texture, tandis que l’effet miroir entre le tapis et le plafond de couleur vert foncé compresse légèrement l’espace pour le ramener à une échelle plus humaine.
Mention spéciale pour le superbe luminaire qui coiffe la section des fruits et légumes !
Description du projet :
Avec la fruiterie Fraîchement Bon Jarry, Dupont Blouin continue son incursion dans la conception de commerces de quartier au concept efficient et convivial. Souhaitant rendretoujours plus ludique et agréable l’activité routinière de faire son épicerie, le duo d’architectes mise sur un design qui fait la part belle à la lumière, à la courbe et à la couleur pour une expérience tout en douceur, en efficacité et en fluidité.
Après avoir inauguré en 2020, sur la rue Villeray, une première épicerie dans l’arrondissement Villeray – Saint-Michel – Parc-Extension, la chaîne de fruiterie montréalaise Fraîchement Bon en ouvre une autre dans le même quartier, sur la rue Jarry. Pour cette deuxième édition, la firme d’architecture et de design Dupont Blouin – qui avait signé Fraîchement Bon Villeray – reste aux commandes et peaufine son expertise en conception de magasins d’alimentation, souhaitant réinventer l’expérience de l’épicerie.
Une épicerie de quartier en phase avec son environnement
Depuis plusieurs années, la rue Jarry voit ouvrir de nouveaux commerces qui participent à la revitalisation du quartier. C’est dans cette optique que s’inscrit l’entreprise familiale Fraîchement Bon, souhaitant elle aussi se joindre au vent de fraîcheur que connait le quartier.
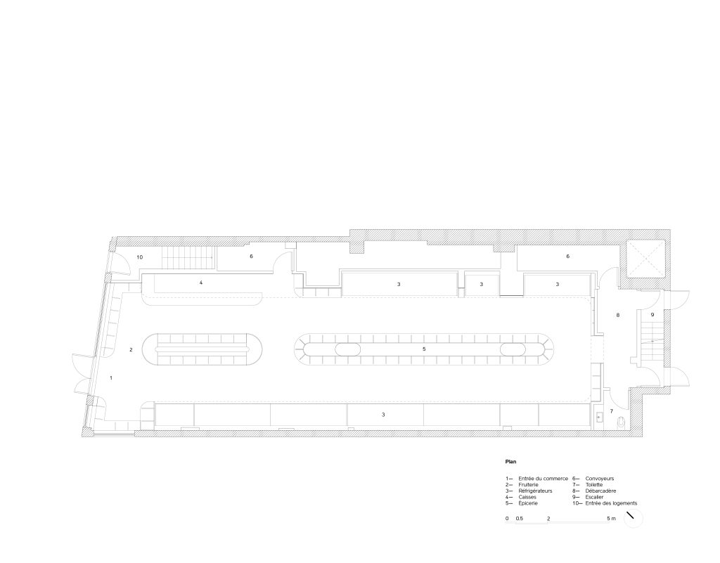
Le local de moins de 2000 pieds carrés occupe le rez-dechaussée d’un édifice d’architecture debriques rouges, typiquement montréalais, datant de 1935. Afin de mettre en valeur la frise et les colonnes en pierre sculptée d’époque art déco, les architectes ont opté pour une signalisation extérieure minimale. Les cadrages de porte et de fenêtres en aluminium se distinguent par leur minimalisme et leur couleur. Le vert forêt rappelle sobrement l’identité du commerce dont le nom en lettre lumineuse est simplement apposé devant la frise, se mêlant discrètement aux vagues.
Comme dans l’épicerie sur la rue Villeray, les caisses de Fraîchement Bon Jarry sont éclairées par les luminaires de Studio Botté, une compagnie locale dont chaque création est faite à partir de matériaux récupérés à Montréal.
Un concept tout en rondeur pour une expérience réinventée
Située à un coin de rue de la station de métro Jarry, l’épicerie profite d’un emplacement de choix.Pour attirer la clientèle de passage, les architectes ont misé sur un design invitant à fort impact visuel. À travers les baies vitrées, un mobilier tel un grand plateau de fruits surmonté d’un luminaire tout en courbe, à l’image d’une lanterne suspendue, nous convie à entrer. Cet élément chaleureux résume à lui seul le concept développé par les architectes.
Inspiré par le logo de Fraîchement Bon et la forme du radis, le design propose une circulation tout en rondeur. Au lieu de se perdre dans le dédale des allées, un mobilier en bandeau accompagne le circuit et habille le magasin : un geste continu, élégant et unificateur qui rend les déplacements plus fluides et simplifie au maximum l’expérience du parcours. Les allées larges de 5 pieds permettent une circulation confortable et le concept du passage unique fonctionnel. Le plan parallèle et le souci d’alignement des éléments favorisent une impression d’apaisement visuel.
À la différence du premier concept d’épicerie où un immense réfrigérateur occupait le centre, les réfrigérateurs ont ici été placés en périphérie et le mobilier en contreplaqué se trouve au coeur de la fruiterie, et cache les colonnes de soutien du bâtiment. La trame dessinée par les 7 niveaux des étagères permet une lecture rapide des produits et contribue à la clarté et la simplicité de l’expérience de magasinage.
Une fois de plus, les architectes réussissent le défi d’optimiser chaque pied carré de l’épicerie tout en donnant une impression de légèreté visuelle. Le design met en valeur les produits d’épicerie fine et oriente les habitudes de placement en exigeant une attention et une présence plusfréquentes des épiciers dans le magasin. Un aménagement qui participe à améliorer le service, l’entretien et à favoriser le contact humain avec le commerçant.
Fraîchement Bon Jarry repense le commerce de proximité à travers une esthétique plus résidentielle que commerciale. Les courbes du mobilier apportent une douceur et une convivialité qui contrastent avec les formes rectilignes propres aux espaces commerciaux. Un éclairage DEL aux couleurs plus chaudes a été choisi afin de rendre l’ambiance plus chaleureuse.
Le design favorise la lumière naturelle le plus possible. La façade vitrée de l’épicerie laisse entrer la lumière extérieure et l’orientation nord baigne le commerce d’une douce luminosité sans nuire aux aliments. Le long des fenêtres, un mobilier bas expose en vitrine certains produits tout en permettant d’en voir d’autres plus loin dans le magasin. Depuis la rue, notre regard plonge dans la fruiterie, attiré par les couleurs, la mise en place et l’effet de perspective générée par la profondeur du local. Depuis le magasin, les grandes baies vitrées et dégagées nous gardent en contact constant avec la rue et son effervescence, mimant l’ambiance animée des marchés publics.
Une palette de couleurs et de matériaux qui suggère la fraîcheur des produits
Le choix de l’acier prépeint facilite le lavage des surfaces, comme le mobilier des caisses, le réfrigérateur et les paniers de présentations. Pour équilibrer l’esthétique industrielle et plus froide du métal, les architectes ont opté pour un mobilier intégré en bois et une palette de couleurs croquantes. Entre le vert tendre et le vert forêt, le ton est au végétal et à la fraîcheur qui rappelle les produits frais qui y sont vendus.
Une céramique claire habille le plancher et apporte de la luminosité à l’espace. Pour affronter les hivers québécois et sa traditionnelle neige boueuse, le carrelage est recouvert d’un tapis sur mesure, assorti au vert du mobilier. L’esthétique lumineuse et les touches de couleurs d’accent contribuent à l’ambiance joyeuse du lieu.
Avec ses couleurs fraîches, son mobilier en bois sur mesure, la rondeur de son design et sa circulation intuitive, Fraîchement Bon Jarry participe à la vie active et commerciale de la rue Jarry. Simplifiant le geste du magasinage, Dupont Blouin fait de l’épicerie une expérience agréable, voire ludique. Un design raffiné et invitant qui ne perd jamais de vue l’essentiel : les produits, dont il reste humblement au service.
Fiche technique du projet :
- Titre officiel du projet : Fraîchement Bon Jarry
- Localisation : Montréal, Québec
- Client : Fraîchement Bon
- Architectes : Dupont Blouin Architectes
- Date de fin de projet : Octobre 2022
- Superficie : 167 m2
- Crédit photo : Olivier Blouin
- Autres consultants et intervenants :
- Ébéniste : Frank Minerva, Clementi Canada
- Éclairage : Studio Botte
- Électroménagers : Arneg
- Mobilier : Dupont Blouin, Clementi
- Porcelaine plancher : Ciot
- Comptoir : Corian
- Rédaction de textes : Lorène Copinet
Description de la firme :
Dupont Blouin est une firme d’architecture et de design basée à Montréal, créée par l’association de deux architectes complémentaires, Marie-Josée Dupont et Olivier Blouin : le yin et le yang, la mesure et le déploiement, le froid et le chaud, l’œil et l’œil.
Amoureux d’architecture bien sûr et de nature, ils aiment les lignes pures, les détails précis et les systèmes organisés et intégrés. Spécialisés dans la création de projets sur mesure, chaque détail est pensé, chaque matériau est privilégié pour sa pérennité et chaque couleur se marrie pour des intérieurs harmonieux et des espaces d’exception.
De la résidence haut de gamme à l’épicerie de quartier, de l’aménagement de bureau au mobilier sur mesure, ils cherchent à équilibrer les forces, à aligner les éléments pour créer des espaces maîtrisés, magnifiés et appréciés.













