Pourquoi avoir sélectionné ce projet à titre de vitrine sur Kollectif?
En pleine crise du logement, ce projet est un excellent exemple de densification de nos villes. Les deux bâtiments de faible hauteur qui occupaient autrefois le site ont laissé place à ce projet qui ajoute 81 micro-unités résidentielles au cœur du centre-ville, en plus d’aider à structurer le paysage de ce segment décousu de la rue Sainte-Catherine.
Profondément montréalais, le bâtiment reprend les caractéristiques de l’identité du secteur à travers des gestes sobres et maîtrisés : brique rouge, composition tripartite, rythme régulier et ordonné des façades… Ce projet ne pourrait pas être situé ailleurs sans perdre de son sens. Il est ancré dans son contexte et représente avec brio ce que pourrait (et devrait) être une architecture contemporaine reflétant l’identité montréalaise.
La célèbre terrasse du bar Sainte-Élizabeth, située à l’arrière, représentait un défi d’intimité et de bruit. Les architectes ont habilement proposé une double façade végétalisée afin de réduire le vis-à-vis, diminuer l’impact du bruit, et recréer l’ambiance caractéristique de la terrasse.
Notons également la monomatérialité du projet. Alors que la tendance est à la multiplication des matériaux, des couleurs et des textures à la recherche d’effets «wow» sous prétexte de vouloir “dynamiser les façades”, ce projet nous rappelle que la retenue et la sobriété peuvent être tout aussi pertinentes, en plus d’assurer une plus grande pérennité.
Alors qu’il faudra construire beaucoup de logements au cours des prochaines années, ce projet peut assurément servir d’exemple.
Description du projet
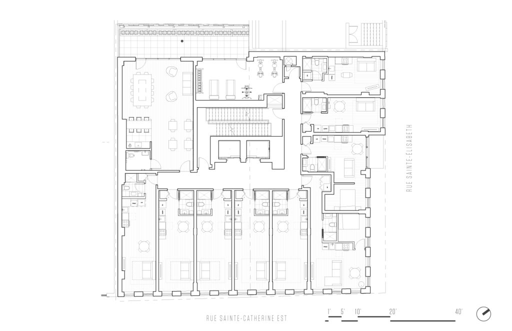
Ensemble résidentiel de 81 micro-unités avantageusement situé à l’angle des rues Sainte-Catherine et Sainte-Elisabeth, le projet ELI répond au défi initial : concevoir une architecture durable et de qualité, parfaitement intégrée dans un contexte résolument urbain.
Le projet relève un défi d’insertion en dialoguant avec ses voisins immédiats et en contribuant au dynamisme de la rue. Définie par une stratification et s’inspirant du cadre bâti environnant, la division tripartite de la volumétrie du bâtiment facilite l’arrimage des hauteurs et permet une intégration douce du bâtiment dans son contexte immédiat. Véritable hommage au contexte et au patrimoine culturel montréalais, le projet reflète cette dualité emblématique de la ville. D’un côté, son architecture extérieure classique qui fait écho aux bâtiments avoisinants tandis que de l’autre côté, c’est par le design intérieur que résonne toute son identité montréalaise et, avec elle, les traces laissées par l’art urbain et les murales du quartier. En outre, la proximité du projet avec la terrasse renommée du Pub Ste-Élisabeth aura aussi nécessité un effort d’intégration, mis en place par une double façade végétalisée permettant de conserver à la fois une certaine intimité tout en réaffirmant l’aspect unique du lieu.
En s’implantant en plein cœur de la ville, le projet constitue la réponse adéquate aux besoins de densification du secteur. En effet, l’ensemble est une réinterprétation contemporaine de l’architecture montréalaise en s’inspirant des trames, des détails de maçonnerie et des gabarits d’ouvertures retrouvés dans le quartier. L’intégration de ces éléments appartenant à l’histoire fait écho à la nouvelle construction et l’ancre dans son environnement. Situé dans un environnement bâti dynamique et hétéroclite, la réussite du projet réside précisément dans la justesse de son intégration.
Fiche technique du projet
- Titre officiel du projet : ELI
- Localisation : Montréal, Québec
- Client : Omnia Technologies
- Architecte : ADHOC architectes
- Ingénieur en structure : L2C Experts-Conseil
- Ingénieur électro‐mécanique : Desjardins Experts-Conseil
- Entrepreneur général : Omnia Technologies
- Date de fin de projet : Juillet 2022
- Superficie : 4726 m²
- Budget : 16.5M$
- Crédits photo : Ulysse Lemerise & Pascale Toupin
- Autres : Atelier 7hz (consultant acoustique)
Description de la firme
ADHOC architectes est une firme d’architecture créative portée par des humains passionnés, aux talents complémentaires. Fondée à Montréal en 2014, la firme compte 35 professionnels, architectes, technologues et designers d’intérieur accrédités LEED, WELL et PASSIVHAUS. ADHOC se démarque par son expertise dans la manière de contextualiser ses projets, mettant en valeur les éléments intrinsèques de chaque lieu et les valorisant par une architecture innovante, identitaire, contextuelle et poétique afin de proposer des concepts créatifs inscrits dans l’expérience de marque qu’ils accompagnent.















