Pourquoi avoir sélectionné ce projet à titre de vitrine sur Kollectif?
La qualité architecturale passe inévitablement par l’appréciation des usager.ère.s d’un lieu, particulièrement lorsqu’il s’agit d’un bâtiment public. L’expérience doit primer sur les grands gestes architecturaux. C’est notamment pourquoi ce complexe sportif a retenu notre attention, ayant remporté le Prix du public 2024 lors des Prix d’excellence de l’Ordre des architectes du Québec.
D’entrée de jeu, le bâtiment impressionne par sa coque métallique qui frappe l’imaginaire. Le « mouvement » provoqué par les angles brise élégamment la monotonie qu’aurait pu avoir de telles façades longitudinales.
La transparence de cet important volume est également appréciable, permettant à la fois de faire entrer un maximum de lumière naturelle, tout en ouvrant des perspectives sur les activités intérieures. Les connexions intérieures-extérieures par ses grandes baies vitrées apportent une légèreté à l’architecture.
À l’intérieur, l’utilisation structurale du bois génère un côté très convivial et chaleureux aux espaces, affichant fièrement une ressource naturelle locale. On retrouve également une certaine forme de sobriété dans la palette de couleurs utilisée (blanc, noir, bleu), ce qui contribuera certainement à l’intemporalité des lieux au fil du temps.
Bravo aux architectes !
Description du projet
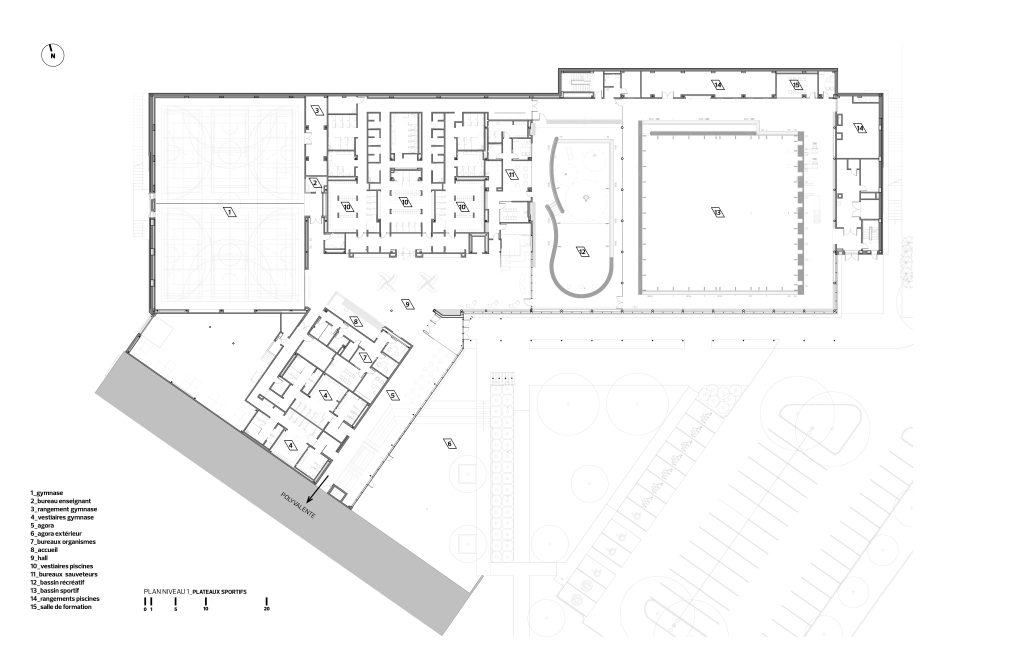
Connecté à la Polyvalente de Saint-Georges, le nouveau Complexe multisport de Saint-Georges est issu de la volonté commune du Centre de services scolaire de la Beauce-Etchemin et de la Ville de Saint-Georges d’offrir des installations sportives d’envergure aux étudiants et citoyens. Réalisé par ABCP architecture en consortium avec Marie-Lise Leclerc architecte et Bilodeau Baril Leeming architectes, le complexe contient un gymnase double, un bassin récréatif, un bassin semi-olympique de 10 corridors, ainsi que des salles de classe. Il se démarque par ses structures de bois, ses larges baies vitrées, son enveloppe perforée à effet de diamant, ainsi que par ses performances énergétiques. Inauguré à l’été 2023, il a rapidement été adopté par la communauté.
Intégration architecturale et urbaine
L’implantation du Complexe multisport sur le site de l’école secondaire le positionne avantageusement dans le pôle d’éducation et de formation de la municipalité. À proximité du Cégep de Beauce-Appalaches, du Centre de services scolaire de la Beauce-Etchemin, du Centre de formation professionnelle et de la Polyvalente de Saint-Georges, le nouveau Complexe multisport s’implante au cœur des habitudes des Georgien.nes, du côté nord-est de l’école secondaire.
Le nouveau volume se déploie en longueur, parallèlement à la piste d’athlétisme extérieure, et se raccorde à la polyvalente au niveau du rez-de-chaussée. La topographie en pente du site a été exploitée afin d’offrir plusieurs accès de plain-pied et ainsi desservir toutes les clientèles, dont celles à mobilité réduite. Sur le flanc sud, les visiteurs sont invités à se diriger vers l’entrée principale en longeant un mur-rideau ouvert sur la piscine et protégé par une marquise.
Dans son traitement architectural, l’agrandissement reprend et réinterprète les codes du patrimoine moderne de l’école secondaire datant de 1974. S’inspirant du bâtiment existant, composé d’un basilaire dont les murs et les contreforts en béton sont coiffés de tôle métallique, le nouveau volume s’intègre en revisitant la stratification des niveaux. Ainsi, un basilaire complètement vitré reprend l’alignement des sections de béton, tandis qu’un parement d’aluminium perforé à effet de diamant évoque l’angulation des contreforts en hauteur.
Une luminosité tous azimuts
Les circulations horizontales et verticales se veulent simples et lisibles. Le hall d’accueil lumineux et ouvert sur deux étages mène d’une part vers les bassins aquatiques et d’autre part vers le gymnase. Les vestiaires de la piscine et les bureaux des surveillants se trouvent au centre tandis que les bureaux des organismes sportifs et les vestiaires du gymnase sont disposés le long d’un agora vitré donnant sur le parvis extérieur, dans l’axe de connexion à l’école secondaire.
Dans le gymnase, de grandes ouvertures laissent généreusement pénétrer la lumière naturelle au nord, tandis qu’elle se trouve tamisée par les perforations dans le parement d’aluminium au sud. Composée d’un bassin sportif de 10 couloirs de 25 mètres avec des tremplins de 1 et 3 mètres, la zone aquatique comporte une rampe d’accès conçue pour les personnes à mobilité réduite et un bassin récréatif muni d’une entrée plage et de jeux d’eau. Abondamment vitré, l’espace est baigné de lumière naturelle. Du côté sud, un mur-rideau longe le parvis et une marquise atténue les rayons directs du soleil dans les bassins.
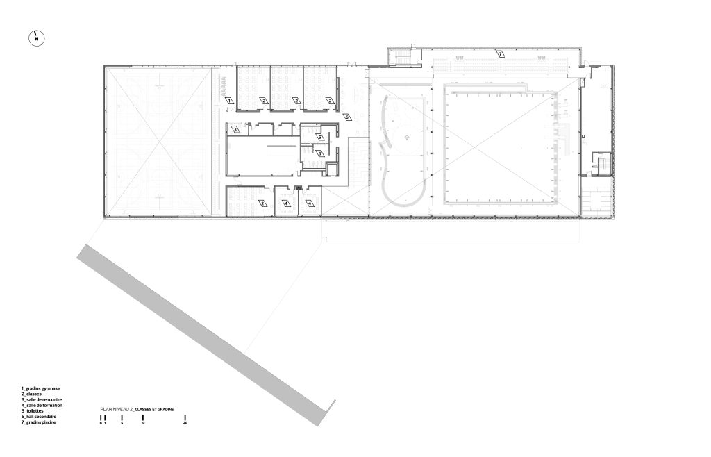
Au cœur du complexe, un escalier gradin en bois offrant une vue directe sur les bassins devient un lieu de rencontre et de socialisation. Au deuxième niveau se trouvent une salle multifonctionnelle, quatre classes, des gradins ainsi que le foyer supérieur. En continuité avec le hall d’accueil et profitant de la vue vers les bassins, ce foyer propose un autre espace de détente, de rencontre et d’étude, ainsi qu’un accès aux gradins de 250 places dans la section des bassins et aux gradins comportant 100 places dans la section du gymnase.
Partout dans le complexe, les immenses baies vitrées et les puits de lumière maximisent l’apport de lumière naturelle. Dans le gymnase, les puits de lumière atteignant près de 20 mètres de longueur contribuent à laisser pénétrer une lumière zénithale. Afin contrôler la luminosité, la fenestration est dégagée et libre sur la façade nord, tandis qu’elle se trouve filtrée par une deuxième peau en aluminium perforé sur la façade sud.
Confort, chaleur et efficacité énergétique
Une attention particulière a été portée à l’ambiance acoustique de ces grands espaces vitrés afin de maintenir les temps de réverbération sous 1,5 seconde. À la fois finition intérieure et support de l’enveloppe, un tablier acoustique perforé et rempli de laine isolante minimisant l’écho a été installé sur les murs de la piscine et du gymnase. Des panneaux acoustiques de tissu recouvrent les surfaces dures dans les parties hautes du gymnase tandis que des tuiles de fibre de bois cimentaire sont utilisées dans le secteur piscine. Dans les espaces communs, le confort acoustique repose sur un plafond suspendu de tuile acoustique de haute performance derrière la structure de lattes de bois, tandis qu’en toiture, la structure de bois offre une qualité d’absorption du son supérieure à celle de bien des matériaux.
La structure de bois massif de la toiture constitue un élément innovant et distinctif du complexe. Les impressionnantes poutres du secteur piscine, d’une longueur de 56 mètres, espacées aux 5 mètres, sont chapeautées de panneaux de CLT (Cross-Laminated Timber). D’une portée libre de 28 mètres dans le gymnase et de 34 mètres au-dessus du bassin sportif, elles sont mises en valeur par la lumière naturelle. Outre sa qualité architecturale, cette structure de bois participe à l’effort environnemental en séquestrant plus de 670 tonnes de CO2.
Les murs-rideaux en verre triple, béton architectural et parement d’aluminium, composant l’enveloppe ont été choisis en raison de leur durabilité et sa performance énergétique surpasse les prescriptions du nouveau code de l’énergie du Québec. Les systèmes mécaniques consomment moins de 20% de combustible fossile, tandis que toutes les autres sources d’énergie sont renouvelables. Le complexe est muni d’un système de ventilation qui récupère l’énergie lors de la déshumidification de l’air de la piscine, permettant de chauffer en priorité l’eau des deux bassins via des condenseurs réfrigérants d’eau en plus de chauffer l’enceinte de la piscine, les gradins et certains locaux périphériques. L’air évacué est pour sa part dirigé vers un récupérateur de chaleur voué à préchauffer 90% de l’air neuf admis dans le bâtiment. Pendant les périodes d’inoccupation ou en période de manque d’humidité dans l’enceinte de la piscine, la quantité d’air neuf admise sera toutefois réduite.
La performance énergétique des systèmes architecturaux et électromécaniques dépasse de 23% celle du bâtiment modèle, entraînant une réduction de 20% des coûts énergétiques annuels, ce qui s’avère exemplaire pour un bâtiment de ce type. Les émissions de GES du complexe sont plus basses de l’ordre de 44,8 tonnes de CO2 eq/an comparativement à celles du bâtiment modèle du ministère de l’Éducation du Québec.
Prix du public
Lumineux et chaleureux, le Complexe multisport de Saint-Georges est ouvert et connecté sur son environnement. Cette réalisation a obtenu le Prix du public aux Prix d’excellence de l’Ordre des architectes du Québec, en avril 2024, un an à peine après son ouverture, une reconnaissance qui témoigne de l’impact d’une architecture de qualité dans une communauté et de sa force d’attraction, à la satisfaction de ses instigateurs.
Fiche technique du projet
- Titre officiel du projet : Complexe multisport de Saint-Georges
- Localisation : Saint-Georges, Québec
- Clients : Centre de services scolaire de la Beauce-Etchemin et la Ville de Saint-Georges
- Architectes : ABCP architecture en consortium avec Marie-Lise Leclerc architecte et Bilodeau Baril Leeming architectes
- Architecte paysagiste : ABCP architecture
- Ingénieur en structure : EXP
- Ingénieur électro‐mécanique : WSP/TetraTech
- Entrepreneur général : Les Constructions Binet
- Date de fin de projet : Juin 2023
- Superficie : 7 140 m²
- Budget : 30,5 M$
- Crédit photo : Stéphane Groleau
- Autres consultants :
- Acoustique : Yockell associés inc.
- Systèmes multimédias : Go Multimédia
- Signalisation : Bélanger
Description des firmes
ABCP architecture
Fondée en 1987, ABCP architecture s’illustre depuis plus de 37 ans à l’échelle provinciale, nationale et internationale, par l’accomplissement de projets novateurs, originaux et structurants. ABCP se démarque par ses constructions intégrant le bois, notamment dans plusieurs installations sportives, dont des complexes aquatiques, des patinoires et des stades de soccer, qui comportent des structures de longue portée en bois. Ses projets sont résolument orientés vers le développement durable. Ses ressources accréditées LEED, WELL et HQE s’investissent dans le but de réaliser des bâtiments et environnements sains, intégrés à leur milieu et visant des empreintes environnementales réduites.
Pour visiter le site internet de la firme…
Marie-Lise Leclerc Architecte
La firme est dirigée par Mme Marie-Lise Leclerc, architecte qui cumule maintenant 22 ans de pratique. Propriétaire de sa firme depuis 2012 et propriétaire unique depuis 2015, Mme Leclerc travaille sur des projets d’édifice à bureaux, d’édifice commerciaux, institutionnels, et résidentiel de grande envergure. La firme utilise une approche de conception intégrée en partenariat avec tous les autres professionnels. Cela est la pierre angulaire du processus de création de la firme qui n’hésite pas à inclure le client dans ses réflexions. Cette collaboration accrue assure un déroulement optimal dans tous les projets. Pour terminer, la firme considère que sa clientèle est l’élément clé de sa réussite. Nombreux sont les clients qui lui sont fidèles en raison de son engagement à travailler en étroite collaboration avec eux et pour l’attention particulière qu’elle porte à leurs idées et à leurs besoins.
Pour visiter le site internet de la firme…
Bilodeau Baril Leeming Architectes
Notre mission est de vous accompagner dans votre projet d’architecture en plaçant l’humain au centre de nos priorités. Nous mettons notre vision et notre expertise au service de vos besoins et ceux de votre organisation afin de créer des espaces uniques, fonctionnels et durables. Notre équipe multidisciplinaire est composée d’architectes et de technologues talentueux qui travaillent avec rigueur pour réaliser nos divers projets institutionnels, industriels, commerciaux, multirésidentiels et résidentiels. Nos trois ateliers situés à Drummondville, Trois-Rivières et Lévis nous permettent d’accompagner nos clients partout au Québec ainsi qu’à travers le Canada et les États-Unis.






























