Pourquoi avoir sélectionné ce projet à titre de vitrine sur Kollectif?
Le métro de Montréal est reconnu pour la qualité et la diversité architecturale de ses stations, toutes représentatives d’une époque qui leur est propre. La station Jolicoeur, inaugurée en 1978 et conçue par l’architecte Claude Boucher, en est un excellent exemple. Sa faible profondeur dans le sol lui permet d’être une des rares stations baignées de lumière naturelle, mise en valeur par une couleur orange vibrante qui ponctue l’aménagement des quais. Parmi les éléments marquants de la station d’origine, notons le design des bancs particulièrement unique et élégant, la mise en valeur des bandeaux de quais, mais surtout la toiture du vaste édicule dépourvu de colonne, qui repose directement sur le mur-rideau.
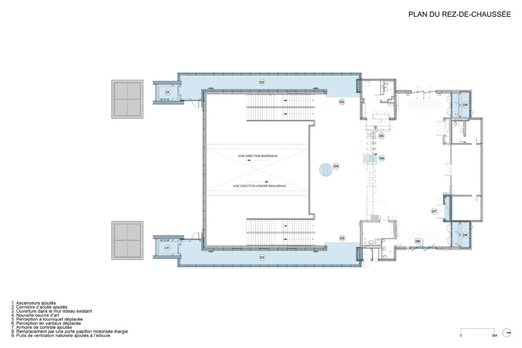
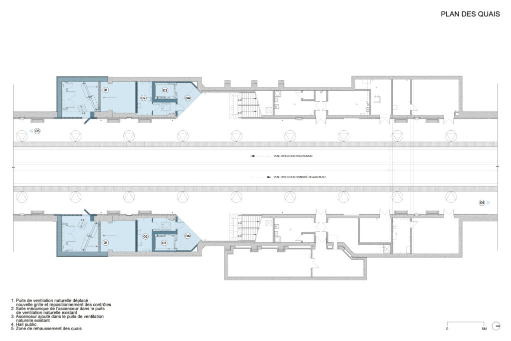
En plus de tous les défis techniques que représente un projet d’intégration d’ascenseurs s’ajoutait la notion de respect du patrimoine moderne. Et c’est ce qui fait la force de ce projet. Les ascenseurs ont été intégrés de manière sensible, dans une réelle compréhension des qualités d’origine de la station. La volumétrie des deux nouveaux volumes, les matériaux utilisés à l’intérieur et à l’extérieur et la relation à la trame existante, toutes les échelles ont été réfléchies de manière à s’harmoniser à l’ouvrage de 1978, tout en ajoutant une touche contemporaine.
Nous apprécions également l’ajout de l’œuvre de l’artiste Chloé Desjardins, qui s’inspire directement de l’architecture de la station, complétant parfaitement cette transformation hautement réussie.
Alors que le patrimoine moderne reste souvent incompris et que les contraintes techniques ont tendance à prendre le dessus sur le respect de ce patrimoine, ce projet est un excellent exemple de conciliation entre le passé et le présent pour atteindre une architecture à la fois fonctionnelle et respectueuse du passé.
Description du projet
Le Programme d’accessibilité de la Société de transport de Montréal vise à rendre les stations de métro accessibles aux personnes à mobilité réduite. En 2017, avec l’aide de subventions publiques, l’objectif principal était d’installer des ascenseurs dans 14 stations, dont la station Jolicoeur.
L’aspect accessibilité du projet va au-delà des implications sociales évidentes d’inclusivité et d’égalité. Il aura également un impact direct et profond sur l’environnement en encourageant une utilisation accrue des transports en commun par toute la population. Cela comprend une amélioration importante pour les parents avec poussettes, les voyageurs avec des bagages, les cyclistes et autres personnes qui pouvaient plus difficilement accéder aux transports en commun.
Il était essentiel que le nouvel agrandissement s’intègre de manière fluide à la structure existante, réputée pour son architecture de style international. Le bâtiment occupe une place remarquable dans le paysage, insufflant de la vitalité au parc De La Vérendrye avoisinant. En plein jour, la structure dévoile une combinaison simple d’acier, de verre teinté et de béton. En soirée, elle s’illumine délicatement, projetant une lueur douce sur l’espace vert voisin. Cette luminosité et cette transparence renforcent non seulement la sécurité du quartier, mais garantissent également que les utilisateurs soient visibles lors de leurs allées et venues ou de l’attente de l’ascenseur.
La verrière existante joue le rôle d’un élément unificateur, intégrant subtilement les nouveaux couloirs en verre à la structure établie, ajoutant discrètement à l’édifice d’origine. À l’intérieur, l’ajout se distingue par ses colonnes noires remarquables qui soutiennent la marquise rouge d’origine, tout en complétant le design initial. Cette intervention améliore le caractère du bâtiment de l’intérieur sans éclipser son charme existant. De l’extérieur, le changement est incorporé de manière subtile, préservant sa présence reconnaissable dans le quartier.
Fiche technique du projet
- Titre officiel du projet : Accessibilité station Jolicoeur
- Localisation : Montréal, Québec
- Client : Société de transport de Montréal (STM)
- Architecte d’origine : Claude Boucher
- Architecte : COEX Architecture en collaboration avec la STM-Grands programmes de maintien des actifs (GPMA)
- Architecte de paysage : Stantec
- Ingénieur en structure : Stantec + STM-GPMA
- Ingénieur électro‐mécanique : Stantec + STM-GPMA
- Entrepreneur général : Celeb Construction
- Date de fin de projet : Octobre 2023
- Budget : 13,5 M$
- Crédit photo : Vincent Brillant
Description de la firme
Le nom COEX est composé des mots Collectif et Experts, reflétant ainsi notre vision de design intégrée et notre approche participative. Cette bannière réunit maintenant nos divisions de gestion de projets, d’architecture, d’architecture de paysage, et nos services de numérisation de bâtiment, offrant collectivement une approche qui redéfinit l’expérience de nos clients.
Installée à Montréal depuis 2002, COEX Architecture (anciennement BARIN architecture + design), est une firme d’architecture et de design qui rassemble une équipe dynamique de 82 employés permanents, dont 10 architectes associés, 4 coordonnateurs BIM, 19 architectes, 10 stagiaires en architecture, 31 technologues et 8 ressources auxiliaires. Nous fournissons une gamme étendue de services en architecture comprenant les services de base : conception, préliminaires, documents d’exécution et surveillance de chantier et l’administration du contrat de construction.
De plus, nous offrons des expertises spécifiques en restauration, réfection d’enveloppe et tous les services connexes tels que études, expertises, inspections de façades et mise aux normes. En tant qu’architectes au sein d’un groupement d’entreprises pluridisciplinaire, nous reconnaissons la valeur exceptionnelle de la conception intégrée. Cette approche révolutionne la manière dont nous abordons chaque projet, en puisant dans les forces combinées de la gestion de projet, de la numérisation de bâtiments et de l’architecture de paysage.
Notre mission demeure centrée sur la conception de milieux de vie en harmonie avec celles et ceux qui y vivent, dans une démarche centrée sur l’individu et sa communauté – une approche qui favorise le bien-vivre ensemble de nos collectivités d’aujourd’hui et demain.


























